Central Frodsham home — renovated, garage, garden, walking distance to station..
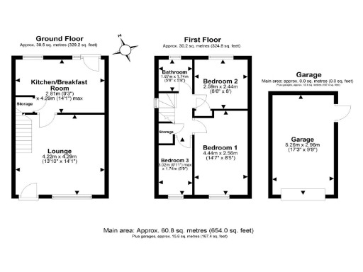
Recently refurbished interior with new kitchen and floor coverings|Three bedrooms in a compact 657 sq ft layout|Driveway parking plus adjacent single garage|Private rear garden with views to Frodsham Hill|Leasehold: approx. 748 years remaining, ground rent £30|No flood risk; fast broadband and excellent mobile signal|Council tax described as cheap; close walk to station and shops|Local crime level reported as above average
Situated in central Frodsham, this neatly refurbished three-bedroom semi-detached house offers a compact, low-maintenance home ideal for first-time buyers or buy-to-let investors. Recent interior upgrades include a new kitchen, fresh decoration and new floor coverings, so the property is ready to occupy with minimal immediate work required. The house benefits from gas central heating, double glazing and a private rear garden with pleasant views to Frodsham Hill.
Practical conveniences include a driveway, adjacent single garage and an easy walking route to the town centre, train station and local schools. Broadband speeds are fast and mobile signal is excellent, supporting home working or streaming. Council tax is described as cheap and there is no flood risk for added peace of mind.
Buyers should note this is a leasehold property with a long lease (approx. 748 years) and a small ground rent of £30. The overall plot and internal footprint are modest (total approximately 657 sq ft), so space is limited compared with larger family homes. Local crime is reported as above average, which should be considered alongside the town-centre location.
Overall this is a tidy, newly renovated small family home or rental opportunity in a sought-after market town. It suits purchasers seeking a central, low-upkeep property with immediate move-in potential and scope to add value through further cosmetic or layout improvements.
3 bedroom detached house for sale in Whitehall Place, Frodsham, WA6 — £280,000 • 3 bed • 1 bath • 1043 ft²
3 bedroom semi-detached house for sale in Queensway, Frodsham, Cheshire, WA6 — £325,000 • 3 bed • 1 bath • 783 ft²
3 bedroom semi-detached house for sale in Princeway, Frodsham, WA6 — £240,000 • 3 bed • 1 bath • 708 ft²
3 bedroom semi-detached house for sale in Ship Street, Frodsham, WA6 — £255,000 • 3 bed • 1 bath • 1022 ft²
2 bedroom semi-detached house for sale in Martin Road, Frodsham, Cheshire, WA6 — £325,000 • 2 bed • 2 bath • 938 ft²
3 bedroom semi-detached house for sale in Maori Drive, Frodsham, WA6 — £300,000 • 3 bed • 1 bath • 932 ft²


























































