Secluded village charm with large living spaces and landscaped courtyard garden.
30ft vaulted living room with exposed beams and garden access
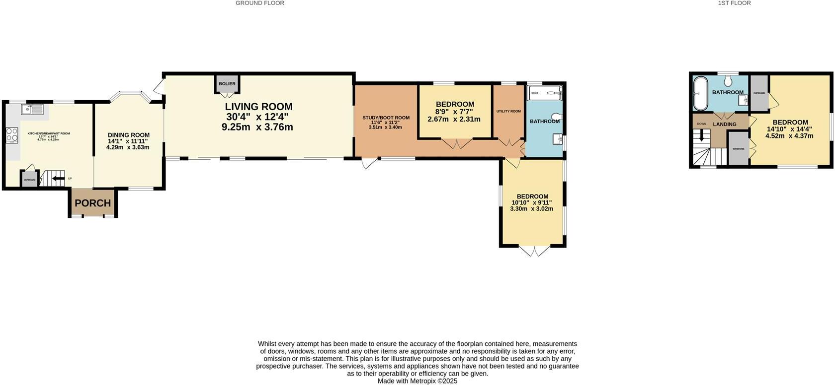
Clock House Cottage is a charming three-bedroom character home tucked down a private lane in High Hurstwood, offering 1,371 sq ft of versatile living space and a peaceful rural setting. The house centres on a dramatic 30ft vaulted living room with exposed beams and garden access, complemented by a stylish kitchen/breakfast room, formal dining room and useful utility and boot/study spaces for countryside life.
Outside, the landscaped split-level courtyard garden with pergola, private driveway and garage provides a low-maintenance yet attractive outdoor space. The large principal bedroom sits above with pleasant village views, while two ground-floor bedrooms and a separate shower room give flexible sleeping arrangements suitable for families or downsizers.
Practical considerations include oil-fired central heating and solid brick walls likely without modern cavity insulation — buyers should allow for ongoing fuel costs and potential insulation or retrofit works. Council Tax band E is above average for the area. The property is freehold, in a secluded hamlet setting with fast broadband but only average mobile signal.
This home suits buyers seeking character, generous living proportions and a tranquil countryside lifestyle, and those happy to carry out modest energy-efficiency upgrades to improve running costs. Viewing is recommended to appreciate the vaulted living space and private garden setting.
3 bedroom semi-detached house for sale in High Hurstwood, Uckfield, East Sussex, TN22 — £450,000 • 3 bed • 2 bath • 1228 ft²
3 bedroom detached house for sale in East Hoathly, Lewes, East Sussex, BN8 — £645,000 • 3 bed • 2 bath • 1518 ft²
3 bedroom detached house for sale in Limes Lane, Buxted, Uckfield TN22 4PA, TN22 — £750,000 • 3 bed • 1 bath • 1226 ft²
3 bedroom end of terrace house for sale in Fairview Cottages, Balaclava Lane, Wadhurst, East Sussex, TN5 — £545,000 • 3 bed • 1 bath • 1295 ft²
4 bedroom semi-detached house for sale in Hurstwood Road, High Hurstwood, Uckfield, TN22 4BE, TN22 — £750,000 • 4 bed • 3 bath • 2906 ft²
5 bedroom semi-detached house for sale in Rocks Lane, High Hurstwood, TN22 — £625,000 • 5 bed • 2 bath • 1946 ft²






































































































