Large extended family home on an exclusive cul-de-sac with double garage and garden.
Six double bedrooms including master with en-suite and fitted wardrobes|Extended ground floor with dining room and large dining kitchen|Large rear garden mostly lawn with patio seating area|Driveway parking plus attached double garage|Spacious lounge with feature fireplace and French doors|Double glazing and gas central heating throughout|Area classified as deprived; consider local investment context|Average mobile and broadband speeds in the area
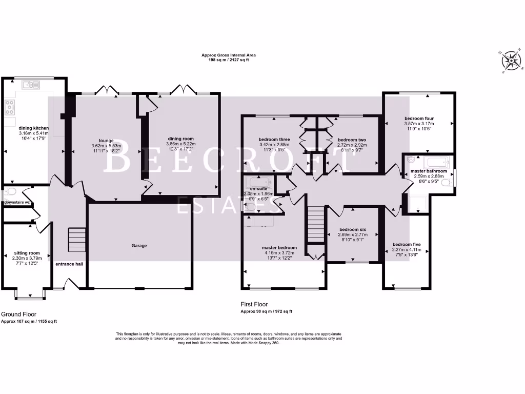
This extensively extended six-bedroom detached house on an exclusive cul-de-sac offers genuine family living space. With 2,127 sq ft across multiple reception rooms, a large rear garden, driveway and double garage, the home gives flexibility for growing families, home working and hobby space.
Ground-floor living is generous: a main lounge and separate dining room (part of the extension) both open to the garden, while a large dining kitchen provides integrated appliances and room for family meals. Upstairs are six double bedrooms, a master with en-suite, and a four-piece family bathroom — plenty of room for children and guests.
Practical features include double glazing, gas central heating and freehold tenure. The property sits in a modern brick development with private drive access and good-sized plot, providing outdoor play space and secure parking.
Buyers should note the wider area is classified as deprived, and local mobile and broadband speeds are average. While nearby primary schools are rated Good or Outstanding, one local secondary has a Requires Improvement outcome. Overall this is a substantial family home in a private cul-de-sac with adaptable living space and strong parking and garden provision.
5 bedroom detached house for sale in Poplar Road, Wombwell, Barnsley, South Yorkshire, S73 — £435,000 • 5 bed • 2 bath • 1680 ft²
5 bedroom detached house for sale in Lundhill Road, Wombwell, Barnsley, S73 — £425,000 • 5 bed • 3 bath • 2315 ft²
5 bedroom detached house for sale in Willow Tree Way, Wickersley, Rotherham, South Yorkshire, S66 — £475,000 • 5 bed • 2 bath • 1334 ft²
4 bedroom detached house for sale in Low Croft, Wombwell, Barnsley, S73 — £280,000 • 4 bed • 2 bath • 1085 ft²
6 bedroom detached house for sale in The Sycamores, Scawthorpe, DONCASTER, DN5 — £650,000 • 6 bed • 3 bath • 2638 ft²
6 bedroom detached house for sale in Beeden Close, Thrybergh, Rotherham, South Yorkshire, S65 — £475,000 • 6 bed • 4 bath • 3000 ft²






































































































