Chain-free three-bed semi with driveway and garden — ideal for first-time buyers or investors.
Chain-free three-bedroom semi-detached house, built 1960s
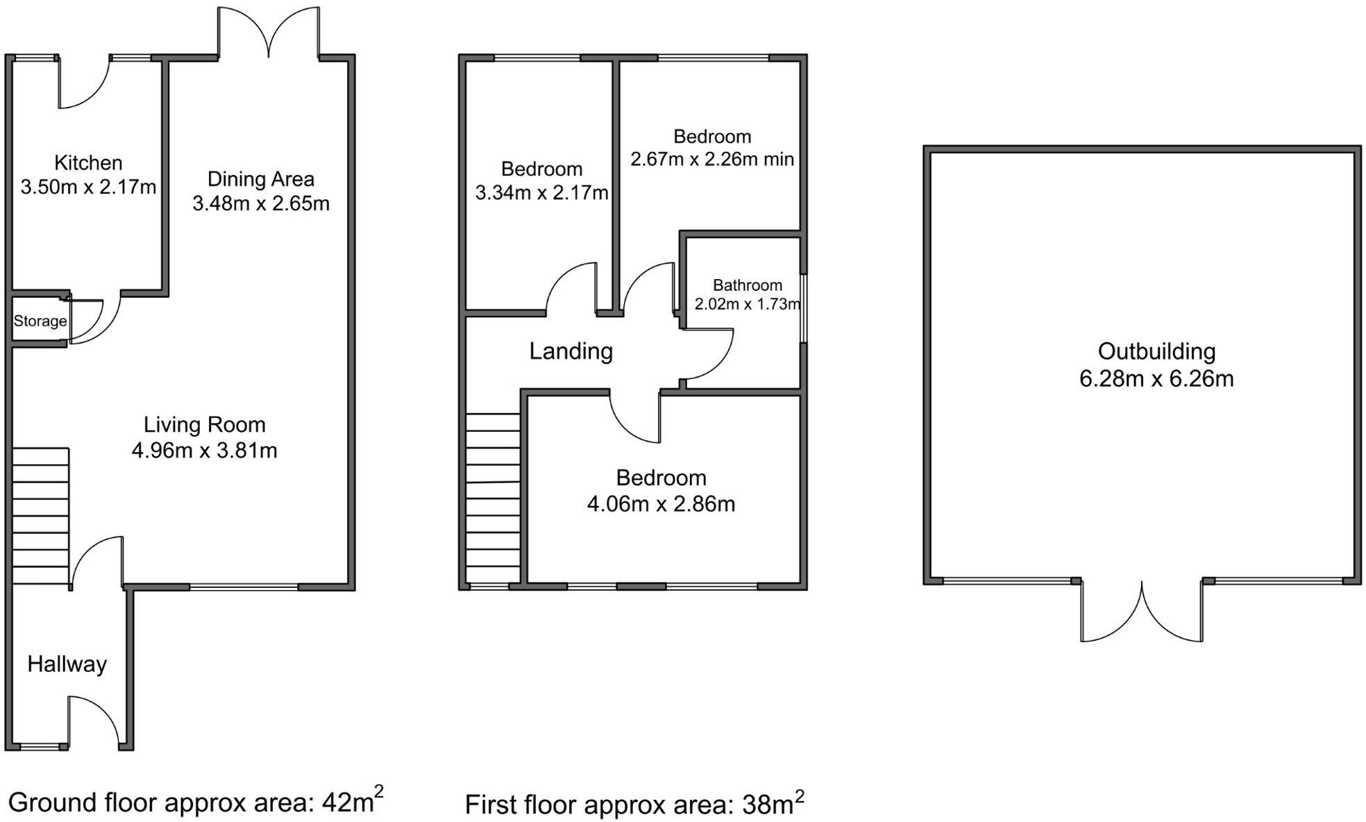
Open-plan living/dining with hardwood floors and gas fireplace
Large driveway for multiple off-street parking spaces
Low-maintenance rear garden with outbuilding for storage
Approx 80 sqm (840 sq ft); single bathroom only
EPC expired and currently reordered — confirm before exchange
Boiler 6 years old; loft boarded and insulated
Area records above-average crime; some local schools mixed ratings
This three-bedroom semi-detached home on Trenance Road is offered chain-free and suits first-time buyers or investors seeking straightforward accommodation with immediate parking. Built in the 1960s, the property presents an open-plan living/dining room with hardwood floors and good natural light, plus a gas fireplace and modern UPVC windows installed around six years ago. The large driveway and low-maintenance rear garden with outbuilding add practical outside space and rental or storage potential.
The house requires light updating rather than full refurbishment: the boiler is six years old and was serviced in April 2024, loft is boarded and insulated, and windows are relatively recent. The single bathroom and overall average size (approximately 80 sqm / 840 sq ft) mean the home is best suited to small families, couples, or rental use. EPC documentation is pending (expired and reordered) and should be confirmed during conveyancing.
Notable considerations are factual: the area records above-average crime and local school ratings are mixed — several nearby primaries and secondaries have Good Ofsted reports, while a couple are rated Requires Improvement or Inadequate. The front driveway currently needs some landscaping attention. There is no history of subsidence and no known asbestos or unsafe cladding.
Overall this is a practical, chain-free starter home or buy-to-let opportunity in a sought-after Exhall location. Its combination of off-street parking, open-plan living and usable outdoor space offers immediate usability and scope to add value with modest cosmetic improvements.
3 bedroom semi-detached house for sale in Davies Road, Exhall, CV7 — £295,000 • 3 bed • 1 bath • 1012 ft²
3 bedroom end of terrace house for sale in Trenance Road, Exhall, Coventry, Warwickshire, CV7 — £240,000 • 3 bed • 1 bath • 1217 ft²
4 bedroom detached house for sale in Coventry Road, Exhall, CV7 — £370,000 • 4 bed • 2 bath • 1397 ft²
2 bedroom semi-detached bungalow for sale in Robert Road, Exhall, Coventry, CV7 9GT, CV7 — £230,000 • 2 bed • 1 bath • 826 ft²
3 bedroom semi-detached house for sale in Heckley Road, Exhall, CV7 — £239,500 • 3 bed • 2 bath • 1033 ft²
3 bedroom semi-detached bungalow for sale in Robert Road, Exhall, Coventry, CV7 9GR, CV7 — £220,000 • 3 bed • 1 bath • 855 ft²


































































































