**Standout Features:**
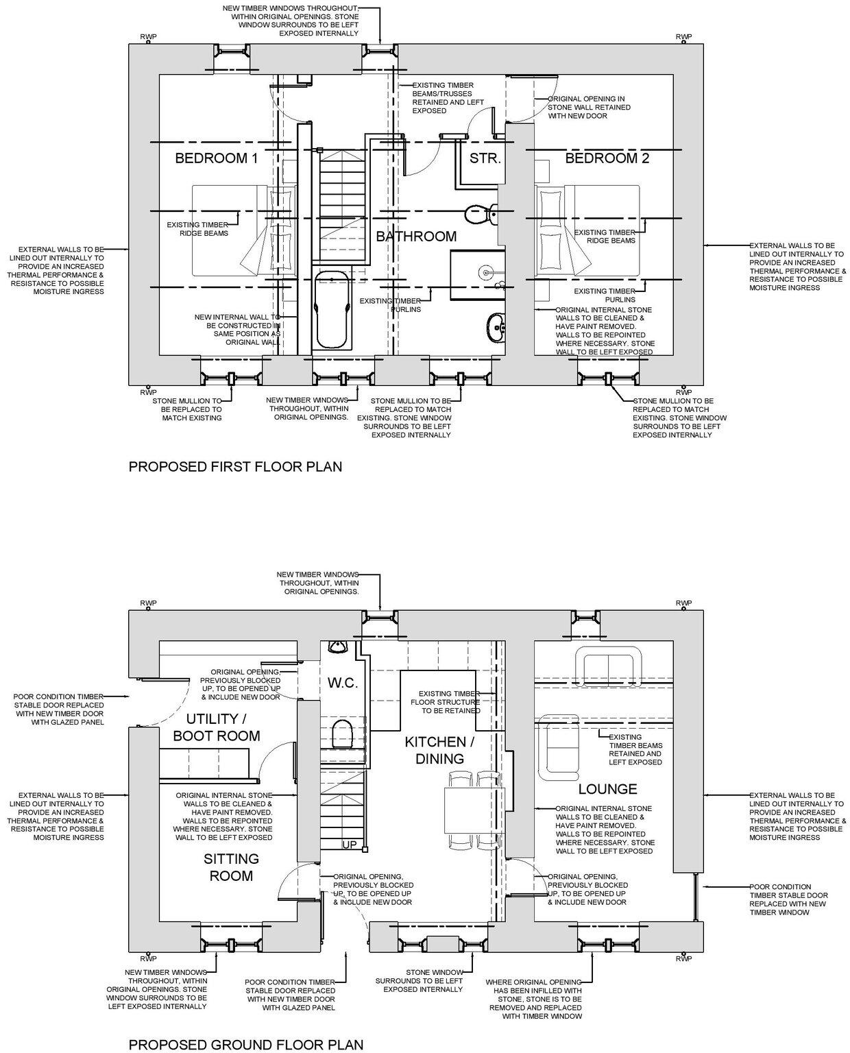
- **Planning Permission**: Approved conversion of barn into a 2-bedroom dwelling (3rd bedroom potential).
- **Rural Location**: Situated in the Forest of Bowland Area of Outstanding Natural Beauty.
- **Historical Charm**: A former 18th-century mineworker's cottage, enhancing unique character.
- **Serenity and Views**: Surrounded by stunning countryside views, perfect for tranquility seekers.
- **Solid Structure**: Stone-built with a classic slate roof, providing a rustic appeal.
- **Large Plot Size**: Offers extensive outdoor space for gardening or potential extensions.
- **Excellent Connectivity**: 2 miles from Wennington Railway Station, making travel to Leeds/Carnforth easy.
This exceptional detached stone barn is a hidden gem, nestled in the picturesque hamlet of Wennington and surrounded by the stunning landscapes of the Forest of Bowland. With detailed planning permission already in place for a conversion into a charming 2-bedroom home (potential for a 3rd bedroom), this is an ideal opportunity for both first-time buyers and investors looking for a renovation project. The barn boasts a solid stone structure and classic slate roofing, exuding rustic charm that's hard to find.
The large plot size provides ample room for outdoor development, allowing you to create a serene garden or even expand the existing structure. Although the barn is currently in need of renovation, its location promises a peaceful lifestyle complemented by beautiful views of the rolling countryside. Nearby amenities are limited, but the low crime rate and community feel offer a secure environment for families and those seeking a quieter life.
Don't miss your chance to transform this unique property into your dream home; opportunities in such a beautiful location are rare! With quick access to the Leeds/Carnforth railway line and fast broadband connectivity, you will find the balance of rural peace and modern convenience. Act fast—this barn won't be on the market for long!
Barn for sale in Barn for conversion, Docker Park Farm, Arkholme, Carnforth, LA6 1AR, LA6 — £425,000 • 1 bed • 1 bath
Barn for sale in Main Street, High Bentham, Lancaster, LA2 — £150,000 • 3 bed • 1 bath
Plot for sale in Brookhouse Road, Brookhouse, Lancaster, Lancashire, LA2 — £350,000 • 1 bed • 1 bath • 4090 ft²
Barn for sale in Fleet Barn, Austwick LA2 — £320,000 • 4 bed • 1 bath
Farm for sale in Quernmore, Lancaster, LA2 — £1,500,000 • 5 bed • 1 bath • 2527 ft²
Plot for sale in Main Street, Whittington, Carnforth, Lancashire, LA6 — £475,000 • 3 bed • 1 bath • 3278 ft²










































