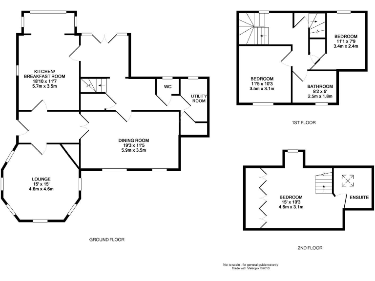
**Standout Features:**
- Stunning 3-bedroom Victorian stone farmhouse, Grade II Listed
- Newly renovated with period features and high ceilings
- Unique octagonal living room with large windows for natural light
- Master suite on the top floor with ensuite bathroom
- Well-maintained gardens to front and side
- Excellent mobile signal; proximity to local amenities and good road links
**Notable Concerns:**
- Listed status may complicate future renovations
- Slow broadband speeds may be a downside for remote work
- Medium surface water flood risk noted
- Located in a former mining area
Nestled in the tranquil Brancepeth village, this stunning Grade II Listed semi-detached farmhouse presents a rare opportunity for potential homeowners seeking a unique living space. With a comprehensive restoration, the property showcases exquisite Victorian architecture, from the grand entrance hallway with its traditional wood flooring and chandelier to the exceptional octagonal living room, offering both character and comfort. The master suite, complete with fitted wardrobes and an ensuite, provides a private retreat, while the beautifully landscaped gardens frame this picturesque home.
Perfect for families, professionals, or those looking to invest in a piece of history, the property is conveniently located near local amenities while offering excellent commuting links to Durham City Centre, just 5 miles away. With a moderate council tax band and exceptional mobile coverage, this home strikes a delightful balance between rural charm and modern-day convenience. Viewing is essential to fully appreciate the unique allure of this property—don’t miss your chance to make this exquisite farmhouse your own!
5 bedroom semi-detached house for sale in Fyndoune, Hartside, Durham, DH1 — £725,000 • 5 bed • 3 bath • 3089 ft²
Land for sale in Weather Hill House, Brancepeth, DL15 — £400,000 • 3 bed • 1 bath • 1152 ft²
5 bedroom farm house for sale in Bowlees Farm, Wolsingham, DL13 — £749,000 • 5 bed • 4 bath • 3735 ft²
4 bedroom farm house for sale in The Old Stables, Eliza Farm, DH8 — £850,000 • 4 bed • 2 bath • 572 ft²
4 bedroom detached house for sale in Broomhall Farm, Ushaw Moor, Durham, DH7 — £360,000 • 4 bed • 2 bath • 2400 ft²
4 bedroom farm house for sale in High Street, Low Pittington, Durham, DH6 — £769,950 • 4 bed • 3 bath • 1906 ft²










































































































