Starter-friendly semi with conservatory, driveway and garden in a commuter-friendly location.
- Two double bedrooms, family bathroom
- Conservatory adds extra usable living space
- Large driveway with off-street parking
- Enclosed, good-sized rear garden
- Freehold and chain free — quick sale possible
- Built late 1970s/early 1980s; may need modernising
- Local area classified as very deprived — consider resale
- Double glazing present; installation date unknown
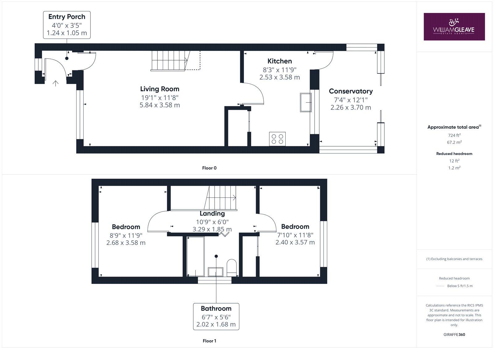
A practical two-bedroom semi-detached house offering straightforward living space and outside parking in a popular Connah’s Quay pocket. The ground floor includes a spacious living room and a conservatory that adds versatile space for dining or a home workspace. Upstairs are two double bedrooms and a family bathroom — compact but functional for first-time buyers or small households.
The property is freehold and offered chain free, with a large driveway for off-street parking and an enclosed rear garden that is a good size for children, pets or a small vegetable patch. Constructed in the late 1970s to early 1980s with filled cavity walls and double glazing (install date unknown), the home has solid basics: mains gas boiler and radiators and fast broadband with excellent mobile signal.
Considerations are factual and important: the home is average in overall size (around 724 sq ft) and likely needs updating to modern tastes and systems over time. The local area is classified as very deprived, which may affect resale values and some local services, although crime rates are very low. Council tax band and exact glazing installation dates are not supplied; buyers should verify these and budget for any planned improvements.
3 bedroom semi-detached house for sale in Welland Drive, Connah`s Quay, Deeside, Flintshire, CH5 — £197,500 • 3 bed • 2 bath • 1258 ft²
3 bedroom semi-detached house for sale in Kent Road, Connah's Quay, CH5 — £175,000 • 3 bed • 1 bath • 861 ft²
3 bedroom semi-detached house for sale in Deans Place, Connahs Quay, CH5 — £160,000 • 3 bed • 1 bath • 732 ft²
2 bedroom semi-detached house for sale in Coppa View, Buckley, CH7 — £180,000 • 2 bed • 1 bath • 721 ft²
3 bedroom semi-detached house for sale in Lindale Close, Connah's Quay, Deeside, Flintshire, CH5 — £190,000 • 3 bed • 1 bath • 377 ft²
2 bedroom end of terrace house for sale in High Street, Connah's Quay, CH5 — £110,000 • 2 bed • 1 bath • 732 ft²






































































































