Grade II listed Victorian end-of-terrace with original features
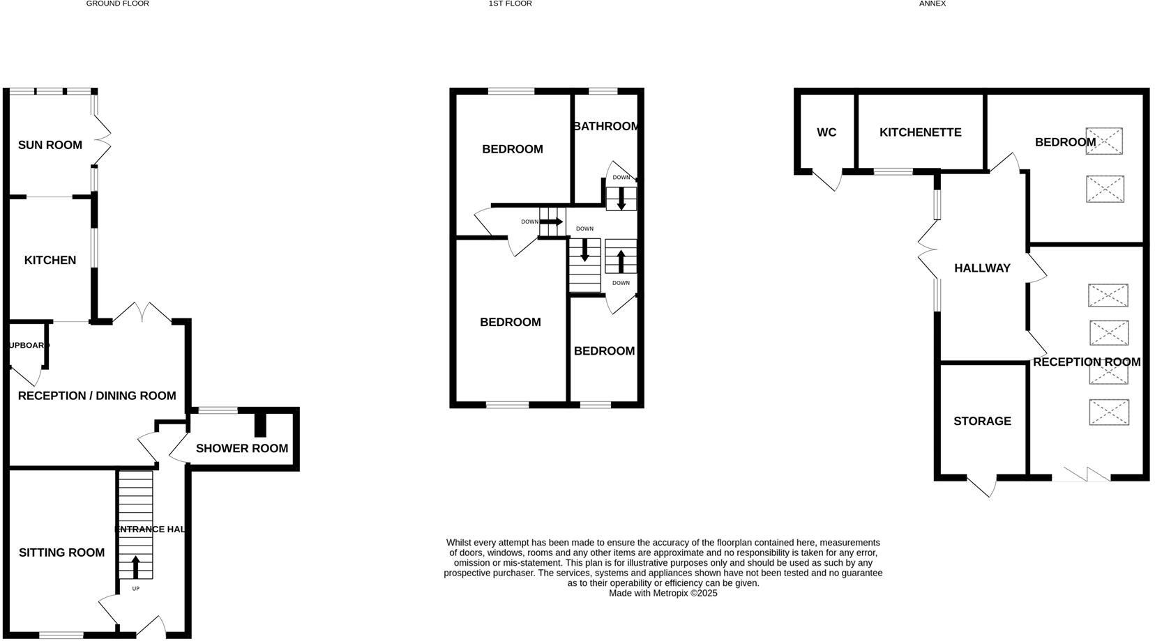
This Grade II listed Victorian end-of-terrace blends original character with practical family living. High ceilings, decorative cornices, bay window and original wood floors give the main house strong period charm, while a sun room and generous rear reception create a relaxed social hub opening onto a mature, enclosed garden. The separate annex provides flexible space for a home office, guest suite, or occasional rental use.
Practical strengths include a large plot with gated off-street parking, mains gas central heating, double glazing (unknown install date) and fast broadband. The property sits on Warmley High Street with Warmley Forest Park nearby and the Bristol–Bath cycle path about 250m away — useful for commuting, schools and family outings. The loft area has been partially converted and offers further potential subject to permissions.
Material constraints are clear and should be considered: listed status (Grade II) will restrict alterations and can complicate permissions and maintenance. The walls are likely uninsulated sandstone/limestone as built, so upgrading thermal efficiency will be necessary. The annex is heated by electric panel heaters rather than mains gas. The overall internal size is modest (approx. 808 sq ft), so families should check room proportions for their needs. The property is in a coal mining reporting area — investigations and insurances may be needed.







































































































