**Standout Features:**
- Unique stone-built property with historical significance, part of a bastle house.
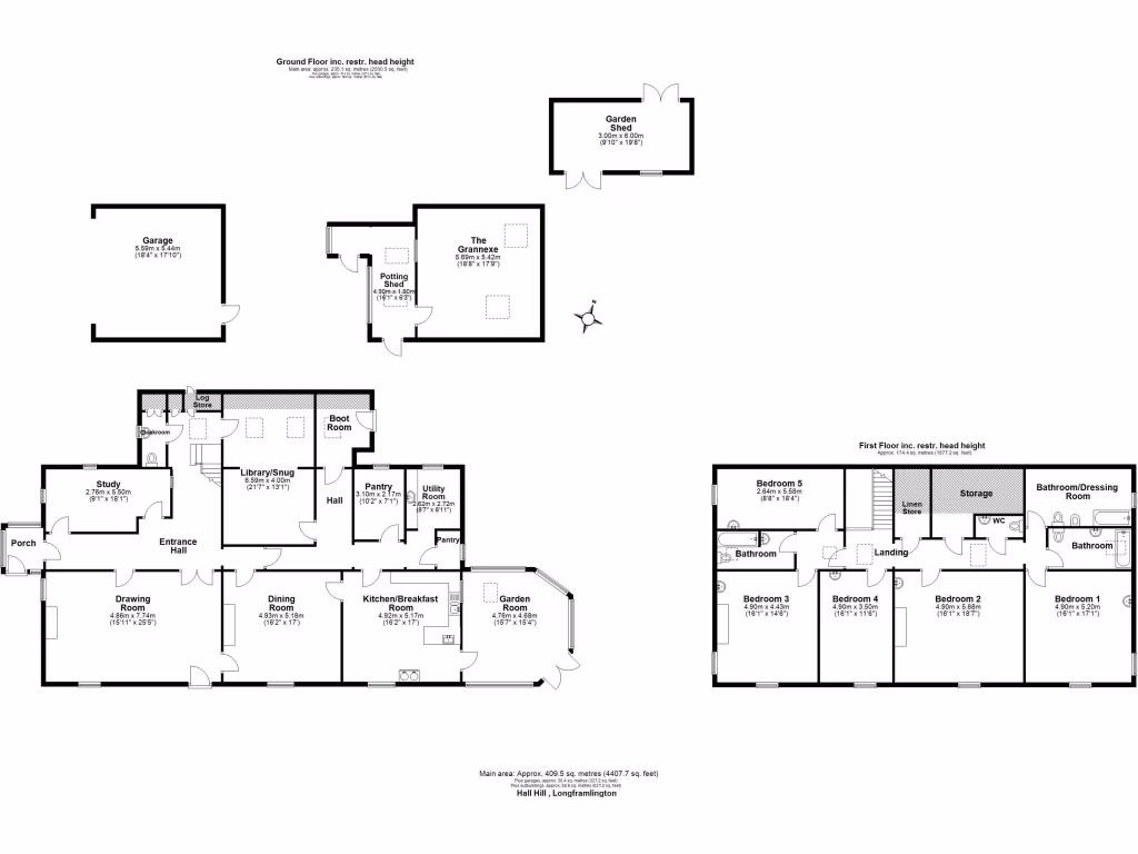
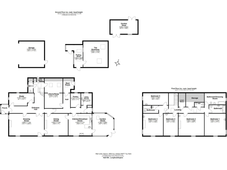
- Expansive living space with 3 reception rooms, 5 bedrooms, and 3 bathrooms.
- Sought-after amenities include a spacious kitchen/breakfast room, garden room, study, utility, and boot room.
- Energy-efficient with installed solar panels and biomass heating.
- Large plot of approximately 1.2 acres with garden, orchard, vegetable garden, and grannexe.
- Low crime rate in a tranquil village setting.
**Summary:**
Nestled on the edge of Longframlington village, Hall Hill House is a charming and substantial detached stone home steeped in history yet modern in its comforts. With over 4,400 square feet of living space, this property is perfect for families seeking a serene setting with room to grow. Enjoy light-filled spaces in three welcoming reception rooms, including a delightful garden room that opens out to panoramic views over the Coquet Valley.
The heart of the home, a spacious kitchen serves as an ideal hub for family gatherings, complete with built-in cupboards and an electric Aga. Five generous bedrooms and three bathrooms provide ample space for family and guests, with additional room for flexibility in the eaves storage area. The exterior boasts a large, wrap-around garden, ideal for outdoor living, alongside a greenhouse, potting shed, and a double garage.
While the property offers exceptional potential for creating a serene sanctuary, be aware that it is constructed from sandstone and may require attention to insulation and glazing for optimal energy efficiency. Being chain-free adds a level of convenience for prospective buyers.
This property not only offers a unique lifestyle but also a secure investment in a vibrant community, within reach of local amenities and the breathtaking Northumberland countryside. Don’t miss the chance to make this distinctive country home your own—properties like this are rarely available for long!
5 bedroom detached house for sale in Hall Hill House, Longframlington, Morpeth, Northumberland, NE65 — £850,000 • 5 bed • 3 bath • 4407 ft²
Land for sale in Land At Hall Hill House (Lot 2), Longframlington, Morpeth, Northumberland, NE65 — £100,000 • 1 bed • 1 bath • 4586 ft²
4 bedroom terraced house for sale in The Orchard, Longframlington, Morpeth, Northumberland, NE65 — £450,000 • 4 bed • 3 bath • 2017 ft²
5 bedroom detached house for sale in High Town, Morpeth, NE65 — £490,000 • 5 bed • 3 bath • 1993 ft²
4 bedroom detached house for sale in High Town Farmhouse, High Town, Longframlington, Morpeth, Northumberland, NE65 — £499,500 • 4 bed • 3 bath • 916 ft²
4 bedroom detached house for sale in Rimside Gardens, Longframlington, Morpeth, NE65 — £450,000 • 4 bed • 3 bath • 1569 ft²


























































