Let, in need of renovation — good rental potential for hands-on investors.
- Immediate rent income: tenancy (AST) in place
- Leasehold with 90 years remaining
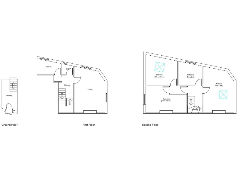
- Three bedrooms and one bathroom across multi-story layout
- Period property with renovation potential
- EPC rating E; likely poor insulation in cavity walls
- On-street parking (unrestricted)
- Area: high crime and very deprived — affects resale
- Ground rent and service charges not yet confirmed
A three-bedroom leasehold maisonette offered as an investment in Springbourne, close to local amenities and public transport. The property is currently let on an AST, providing immediate rental income and straightforward portfolio addition for a landlord who wants an occupied asset.
The layout spreads over multiple floors with a lounge, kitchen, three bedrooms and one bathroom. The building dates from c.1900–1929 and retains period character but requires modernization: internal updates, insulation improvement and energy efficiency works are likely to improve yield and comfort. EPC rating E and cavity walls are assumed to lack insulation.
Practical details to note: 90 years remain on the lease, ground rent and service charges are to be confirmed, and viewings are limited. The area shows high crime rates and very high deprivation, which affects long-term capital prospects but supports rental demand from private-renting households and new arrivals. On-street parking and excellent mobile and fast broadband are positive practical features.
2 bedroom terraced house for sale in Northcote Road, Springbourne, Bournemouth, BH1 — £250,000 • 2 bed • 1 bath • 915 ft²
1 bedroom flat for sale in 65 Cleveland Road, Bournemouth, , BH1 — £140,000 • 1 bed • 1 bath • 374 ft²
3 bedroom maisonette for sale in Wootton Mount, Bournemouth, BH1 — £220,000 • 3 bed • 1 bath • 736 ft²
6 bedroom maisonette for sale in Carlton Road, Bournemouth, BH1 — £500,000 • 6 bed • 2 bath • 980 ft²
2 bedroom flat for sale in Christchurch Road, Bournemouth, Dorset, BH1 — £190,000 • 2 bed • 1 bath • 676 ft²
3 bedroom maisonette for sale in Malmesbury Park Road, Bournemouth, Dorset, BH8 — £350,000 • 3 bed • 3 bath • 969 ft²


























