Flexible two/three bedroom city pad with parking and strong rental potential.
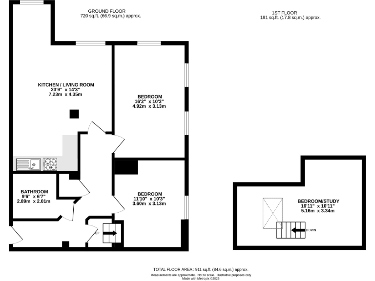
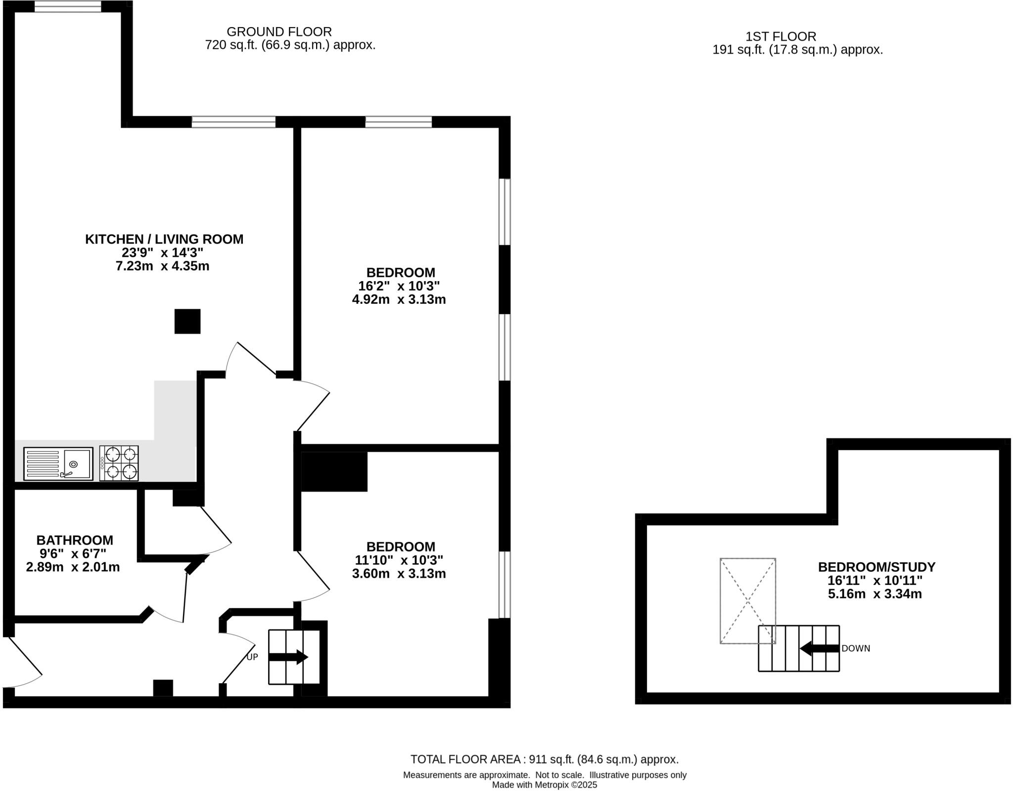
- Top (third) floor loft-style apartment with high ceilings
- Flexible 2/3 bedroom layout, occasional upper-floor room/study
- Allocated off-street parking space included
- Leasehold: 107 years remaining (from 2007)
- Annual service charge approximately £3,110; ground rent £150
- For sale by livestream auction; additional buyer fees apply
- Located in riverside development; short walk to city centre
- Very high local crime rate — security considerations advised
A bright top-floor loft-style apartment in an attractive riverside development, offering flexible 2/3 bedroom accommodation over two levels. The open-plan living room and fitted kitchen give expansive, high-ceilinged living typical of a converted industrial building, while an upper-floor occasional bedroom or study adds useful flexibility for home-working or guests.
The flat is offered at guide price £130,000 and will be sold by livestream auction on 10th December 2025 — buyers should allow for auction costs: a £1,200 administration fee and a £900 buyer’s premium payable on exchange, plus any legal pack disbursements. Tenure is leasehold with 107 years remaining; annual service charge circa £3,110 and ground rent £150.
Practical positives include allocated off-street parking, gas-free electric/boiler with underfloor heating, double glazing, and an EPC rating of C. The apartment is a short walk to Norwich city centre, Riverside Leisure and the main train station, making it convenient for commuters, renters and city living.
Notable drawbacks to consider: the property sits in a very high crime area which may affect security and rental appeal; the high annual service charge and auction-related fees increase upfront and ongoing costs; being leasehold with 107 years remaining may affect mortgage options for some buyers. Buyers seeking a ready-to-move-in home should review the accommodation carefully; some buyers may wish to modernise finishes.
2 bedroom flat for sale in Flat 2, Kent House, 44 St. Stephens Road, Norwich, Norfolk NR1 3RE, NR1 — £120,000 • 2 bed • 2 bath • 560 ft²
2 bedroom apartment for sale in 4D Stracey Road, Norwich, Norfolk NR1 1EZ, NR1 — £175,000 • 2 bed • 2 bath • 815 ft²
1 bedroom ground floor flat for sale in 124A Waterloo Road, Norwich, Norfolk NR3 3HZ, NR3 — £60,000 • 1 bed • 1 bath • 327 ft²
1 bedroom apartment for sale in 4 Stracey Road, Norwich, Norfolk NR1 1EZ, NR1 — £125,000 • 1 bed • 1 bath • 481 ft²
2 bedroom flat for sale in Allison Bank, Geoffrey Watling Way, Norwich, NR1 — £240,000 • 2 bed • 2 bath • 835 ft²
2 bedroom apartment for sale in Paper Mill Yard, Norwich, NR1 — £180,000 • 2 bed • 1 bath • 808 ft²






























































