Chain-free three-bedroom near Elizabeth Line and top-rated schools, ideal for upgrading or renting.
- Chain free freehold Victorian semi-detached house
- Three bedrooms, ground-floor bathroom plus separate toilet
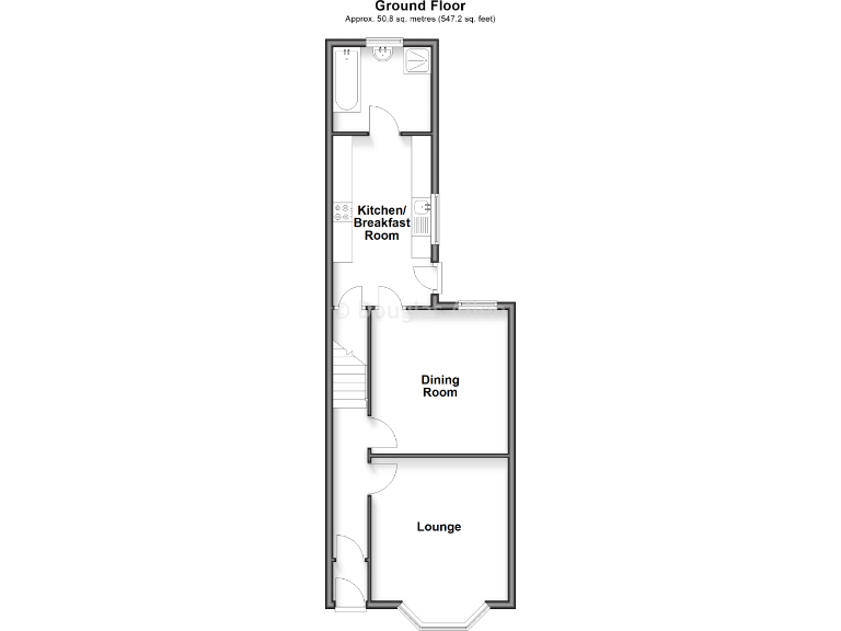
- Bay-fronted reception rooms and kitchen/breakfast room
- Off-street parking and small rear garden
- Built 1930–1949; solid brick with external insulation
- Double glazing present; install date unknown
- Requires updating and cosmetic refurbishment throughout
- Close to Elizabeth Line, excellent schools, fast broadband
A chain-free, three-bedroom Victorian semi near Ilford town centre and the Elizabeth Line, offered freehold and ready for upgrading. The house has a practical ground-floor bathroom, separate toilet, bay-fronted reception rooms and a long kitchen/breakfast room that opens to a small rear garden. Off-street parking to the front and good broadband and mobile signal add everyday convenience.
The property will suit first-time buyers seeking space and scope to add value, or buy-to-let investors targeting strong local rental demand. The building dates from the 1930s–40s, with solid brick walls and external insulation; double glazing is installed but the date is unknown. Council tax is very low, and local schools include two Ofsted-rated outstanding institutions within easy reach.
Some updating and cosmetic refurbishment are required throughout — décor is dated, exterior cracks and general wear are evident, and finishes need renewal. The layout and room sizes are practical (approximately 851 sq ft) which makes extension or internal reconfiguration possible subject to planning. Viewings are by appointment for the open house on Saturday.
3 bedroom terraced house for sale in Grange Road, Ilford, Essex, IG1 — £440,000 • 3 bed • 1 bath • 518 ft²
3 bedroom terraced house for sale in Mildmay Road, Ilford, IG1 — £525,000 • 3 bed • 1 bath • 1429 ft²
3 bedroom end of terrace house for sale in Northbrook Road, Ilford, IG1 — £640,000 • 3 bed • 1 bath • 1120 ft²
3 bedroom terraced house for sale in Kingston Road, Ilford, IG1 — £475,000 • 3 bed • 2 bath • 1006 ft²
3 bedroom house for sale in Wanstead Park Road, Ilford, IG1 — £625,000 • 3 bed • 2 bath • 1450 ft²
3 bedroom terraced house for sale in Dersingham Avenue, London, E12 — £500,000 • 3 bed • 1 bath • 1163 ft²


















































