Charming renovated cottage with garden and outbuildings ideal for rural living.
South-facing rear garden with patio and lawn
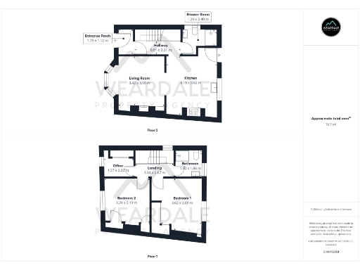
Set in the quiet village of Hamsterley, this recently renovated two-bedroom Victorian semi blends period character with practical modern upgrades. The rewire, new roof and chimney lining, fitted kitchen with central island and new carpets mean the house is largely move-in ready while retaining traditional features such as a bay window and exposed brick fireplace with a multi-fuel burner.
The south-facing rear garden provides a sunny, private outdoor space with patio, lawn and mature borders. Two stone-built outbuildings with power and lighting offer useful storage or workshop potential. Internal layout suits comfortable two-bedroom living with an additional fitted office and two bathrooms, giving flexibility for guests or working from home.
Buyers should note the property is heated by an oil-fired boiler and currently has an EPC rating of E, which may mean higher running costs compared with mains gas homes. Broadband speeds are slow and the plot is modest in size, reflecting the village setting and remoter community classification. The house was constructed before 1900 and external wall insulation is not confirmed, so there may be further energy-efficiency improvements to consider.
Overall this home will appeal to buyers seeking village living, character features and a recently refreshed interior, with the added practical benefits of outbuildings and a sunny garden. It’s especially suited to those prioritising rural lifestyle and ready-to-move-in accommodation, who are comfortable with oil heating and may wish to improve energy efficiency over time.
3 bedroom semi-detached house for sale in Saunders Villas, Hamsterley, DL13 — £230,000 • 3 bed • 1 bath • 1098 ft²
3 bedroom semi-detached house for sale in Hamsterley, Bishop Auckland, DL13 — £285,000 • 3 bed • 1 bath • 1079 ft²
4 bedroom house for sale in Hamsterley, Bishop Auckland, DL13 — £430,000 • 4 bed • 3 bath • 1669 ft²
2 bedroom terraced house for sale in Old Park Terrace, Byers Green, Spennymoor, County Durham, DL16 — £160,000 • 2 bed • 1 bath • 1464 ft²
2 bedroom terraced house for sale in South Terrace, Crook, DL15 — £210,000 • 2 bed • 1 bath • 880 ft²
3 bedroom cottage for sale in Butwell Terrace, Hamsterley, Bishop Auckland, DL13 — £280,000 • 3 bed • 2 bath • 989 ft²


















































































































































