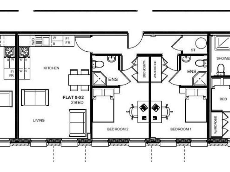
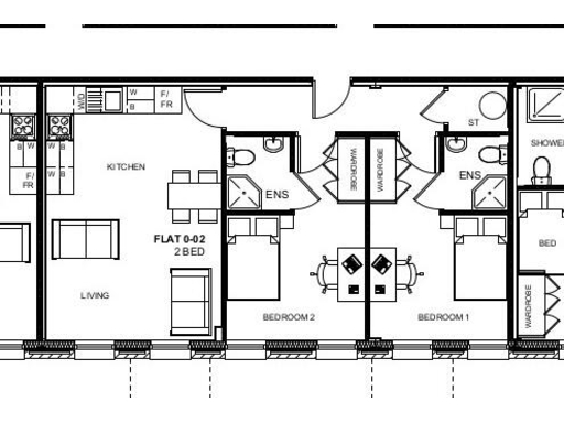
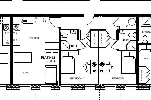
High-spec two-bed apartment with parking near universities and hospital.
Two double bedrooms, each with an en-suite bathroom
This two-bedroom apartment in The Old Ground development offers contemporary city living with practical, high-spec finishes. Both double bedrooms have en-suite bathrooms, and the open living area and contemporary handleless kitchen (integrated appliances, induction hob, LED lighting) provide a comfortable, low-maintenance home. At 765 sq ft the layout feels generous for an apartment and includes a dedicated off-street parking space and secure bike storage.
Security and convenience are strong positives: secured gates, digital access, video entry screens and lockable letterboxes are provided. The fit-out includes engineered oak flooring, ceramic-tiled bathrooms, varnished wooden doors and brushed stainless steel sockets — finishes that suit professionals and first-time buyers wanting a move-in-ready property.
Practical points to note: the property is leasehold (999 years remaining) and there is a non-refundable £5,000 reservation fee plus a required anti-money-laundering check fee of £80. The surrounding area is a busy, cosmopolitan neighbourhood close to both universities, the hospital and transport links, which supports rental demand but also records very high local crime levels.
This apartment suits buyers seeking a turnkey city base or an investor targeting student and professional lettings. Flood risk is low and broadband/mobile connectivity is strong. The development’s modern build and included parking are useful advantages in this central location, but buyers who prioritise quieter, low-crime streets may want to view the area in person before proceeding.
2 bedroom apartment for sale in 7 Lineker Road, Leicester, LE2 — £240,000 • 2 bed • 4 bath
Studio flat for sale in 7 Lineker Road, Leicester, LE2 — £135,000 • 1 bed • 1 bath
1 bedroom apartment for sale in 3 Armlove Road, Leicester, LE2 — £185,000 • 1 bed • 1 bath • 765 ft²
2 bedroom apartment for sale in Montvale Gardens, Leicester, LE4 — £165,000 • 2 bed • 2 bath • 764 ft²
2 bedroom apartment for sale in Pingle Wharf Approach, Leicester, LE3 — £215,000 • 2 bed • 1 bath • 518 ft²
2 bedroom apartment for sale in Princess House, 26 De Montfort Street, Leicester, Leicestershire, LE1 — £200,000 • 2 bed • 2 bath • 767 ft²














































