Contemporary family living beside parkland with modern fittings and low initial maintenance.
Built 2025, chain free and covered by 10-year NHBC Buildmark
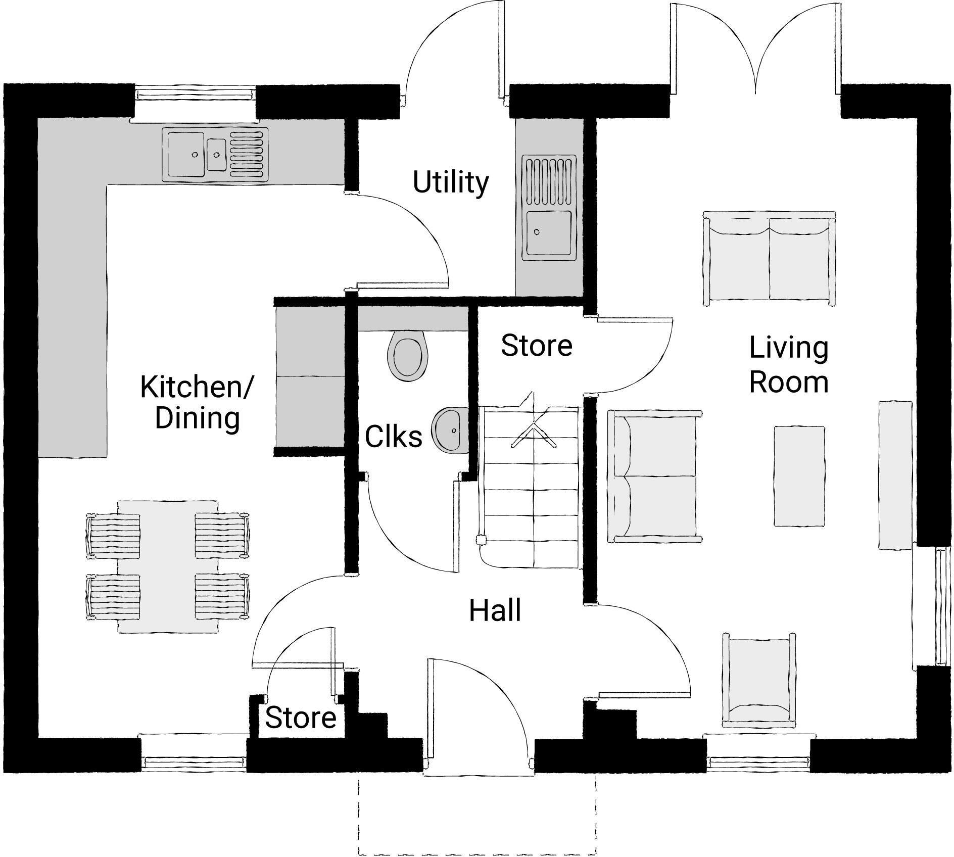
This new-build three-bedroom terraced home at Hedworths Green offers a practical family layout and contemporary specification. The Rickleton delivers an open-plan kitchen/dining area, a triple-aspect living room with French doors to the rear garden, and an en suite to bedroom 1 — practical spaces for everyday family life and entertaining.
Built by a 5 Star HBF-rated builder and covered by a 10-year NHBC Buildmark, the home includes integrated appliances and a utility room, reducing immediate maintenance concerns. The property is chain free and set within the Lambton Park development, which benefits from landscaped surroundings and proximity to local schools and green space.
There are some practical details to note: the estate management charge is £759 annually and the council tax band is yet to be confirmed. The internal area is 985 sq ft and the home is described as average sized; buyers seeking very large rooms or extensive private grounds should check specific room dimensions and plot position.
Overall, this is a low-risk, ready-to-move-in new home aimed at families or first-time buyers who value modern finishes, NHBC protection and a park-side setting. Financial incentives for first-time buyers and the chain-free sale help simplify moving in.
3 bedroom end of terrace house for sale in Hedworths Green at Lambton Park. Durham, County Durham, DH3 4E, DH3 — £299,995 • 3 bed • 1 bath • 985 ft²
3 bedroom detached house for sale in Hedworths Green at Lambton Park. Durham, County Durham, DH3 4E, DH3 — £319,995 • 3 bed • 1 bath • 985 ft²
3 bedroom detached house for sale in Hedworths Green at Lambton Park. Durham, County Durham, DH3 4E, DH3 — £319,995 • 3 bed • 1 bath • 985 ft²
4 bedroom detached house for sale in Hedworths Green at Lambton Park. Durham, County Durham, DH3 4E, DH3 — £424,995 • 4 bed • 1 bath • 1406 ft²
3 bedroom semi-detached house for sale in Hedworths Green at Lambton Park. Durham, County Durham, DH3 4E, DH3 — £284,995 • 3 bed • 1 bath • 802 ft²
3 bedroom detached house for sale in Hedworths Green at Lambton Park. Durham, County Durham, DH3 4E, DH3 — £324,995 • 3 bed • 1 bath • 1039 ft²






















































