Two-bedroom property with private garden and two parking spaces near top schools.
Two double bedrooms and modern family bathroom
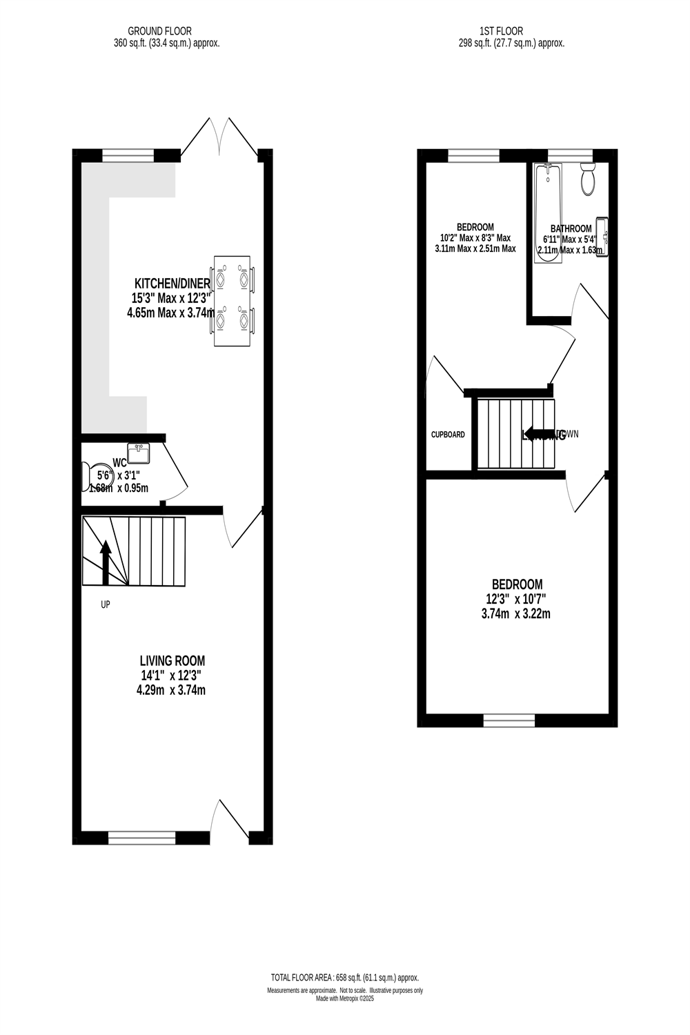
A contemporary two-bedroom terraced house positioned at the end of a quiet cul-de-sac, offering low-maintenance living close to Altrincham town centre and highly regarded schools. The layout is sensible for everyday life: a welcoming living room, an open kitchen-diner with integrated appliances and French doors to a private, enclosed rear garden. Off-street parking for two cars adds practical convenience.
The property is well suited to first-time buyers or downsizers seeking a modern, easy-care home. At about 658 sq ft the accommodation is efficient rather than spacious; rooms are well-proportioned but not generous. The house is presented in contemporary style with laminate floors, double glazing and a modern bathroom, so little immediate updating is required unless desired.
Buyers should note this is a leasehold property. The lease has a long term remaining (989 years) but a ground rent of £350 is payable. Council tax is described as affordable and there is no flooding risk. Broadband and mobile signal are strong in the area.
Local schools include several rated Good and Outstanding, making the location attractive to families. The cul-de-sac setting, enclosed garden and two parking spaces are genuine value-drivers for daily convenience and outdoor enjoyment, while the modest overall size and leasehold charges are the primary practical considerations.
2 bedroom semi-detached house for sale in Sheldrake Road, Broadheath, Altrincham, WA14 — £300,000 • 2 bed • 1 bath • 631 ft²
3 bedroom detached house for sale in Pochard Drive, Altrincham, WA14 5NJ, WA14 — £375,000 • 3 bed • 1 bath • 730 ft²
4 bedroom terraced house for sale in Orchard Road, Altrincham, WA15 — £550,000 • 4 bed • 2 bath • 1439 ft²
3 bedroom detached house for sale in Tarbolton Crescent, Altrincham, WA15 — £320,000 • 3 bed • 2 bath • 921 ft²
2 bedroom semi-detached house for sale in Sheldrake Road, Broadheath, Altrincham, WA14 — £325,000 • 2 bed • 1 bath • 811 ft²
2 bedroom end of terrace house for sale in Drake Road, Broadheath, Altrincham, Greater Manchester, WA14 — £270,000 • 2 bed • 1 bath • 646 ft²






































































