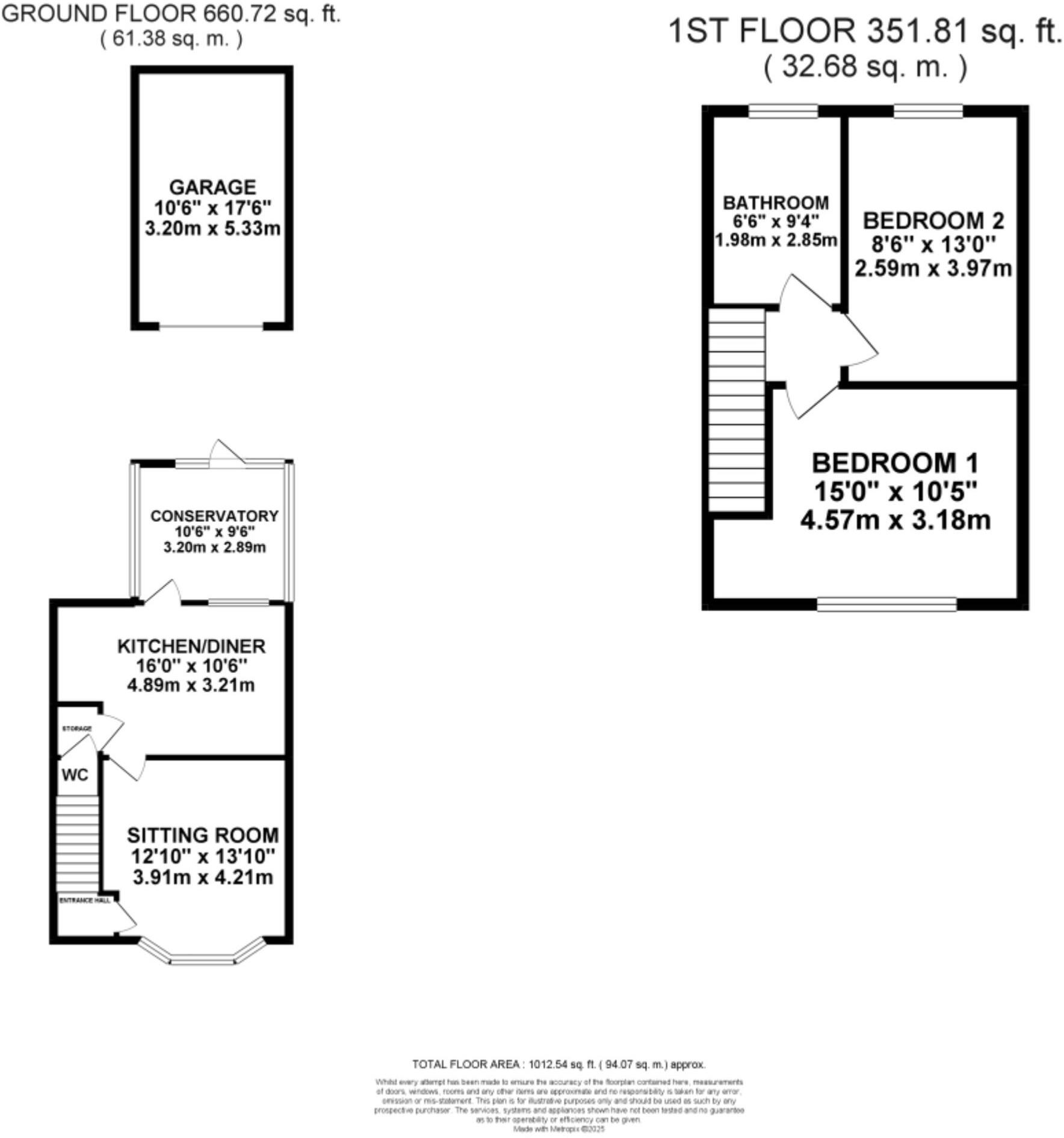
- Two bedrooms: one double, one good-sized single
- Bay-front sitting room with cosy fireplace
- Large kitchen-diner with hidden storage and guest WC
- Fully glazed conservatory for bright living space
- Private, low-maintenance rear garden with artificial grass
- Private garage providing storage / parking
- EPC rating D — scope to improve energy efficiency
- Small plot and average overall size (approx. 840 sq ft)
Tucked into the peaceful village of Draycott in the Moors, this two-bedroom end-of-terrace home combines character features with sensible everyday living. A bay-front sitting room with a cosy fireplace leads through to a generous kitchen-diner and a fully glazed conservatory, creating flexible ground-floor space for family meals and relaxed evenings.
Upstairs offers a comfortable double and a useful single bedroom plus a bathroom. The rear garden is private, low‑maintenance and planted around an artificial lawn, ideal for families who prefer outdoor space without heavy upkeep. A private garage provides valuable storage or off-street parking.
Practical details to note: the property is freehold, modest in overall size (about 840 sq ft) and sits on a small plot. Double glazing is present but install dates are unknown and the Energy Performance Rating is D, so there is likely scope for insulation and efficiency improvements. The house dates from the mid-20th century and will suit buyers comfortable with some updating rather than a move-in-new build.
This home suits first-time buyers or young families wanting village living near good schools and commuter links. It offers immediate comfort, simple outside maintenance and clear potential to personalise and improve energy performance over time.







































































































