Character home with large private garden and versatile family accommodation.
Detached period‑style house with private, landscaped gardens (large plot)
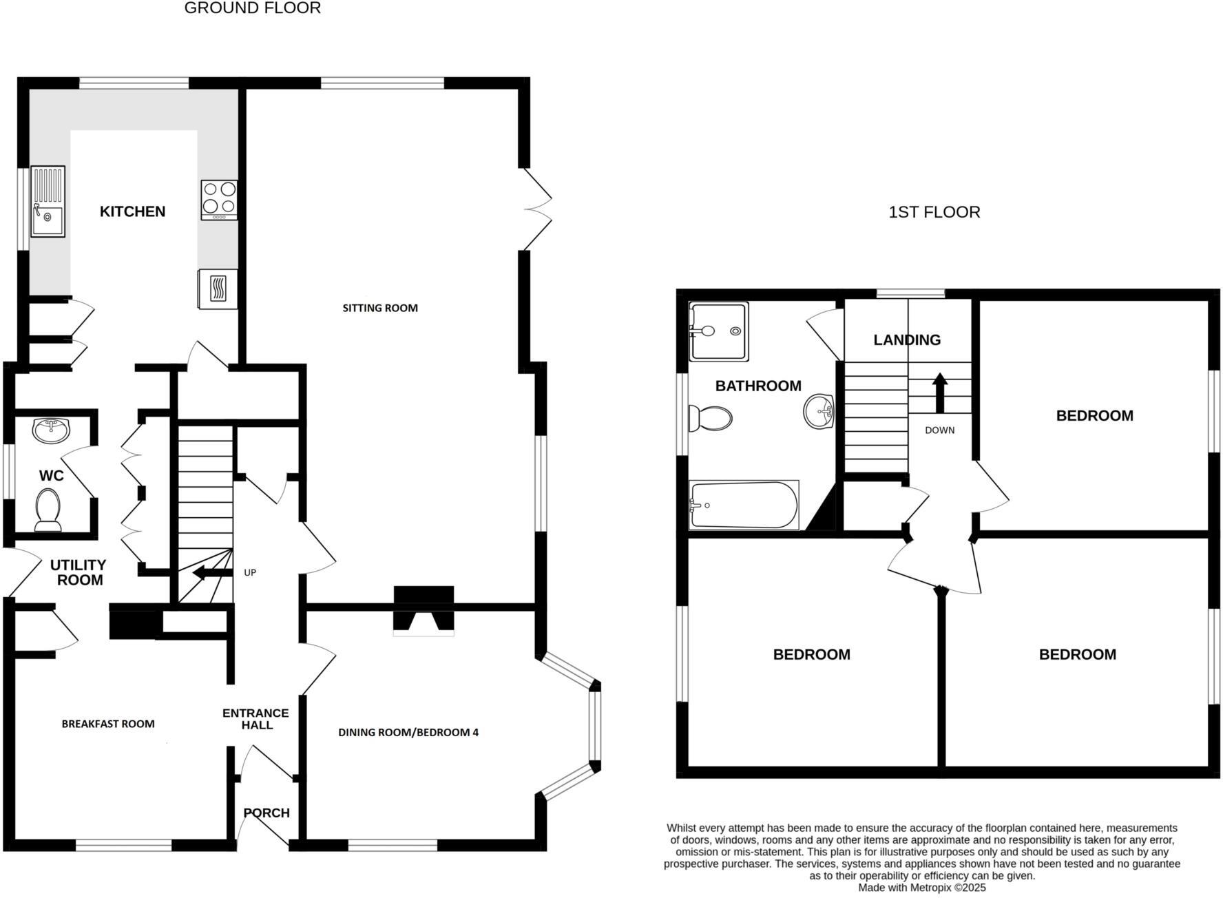
A spacious detached cottage-style home set on a large, private plot with mature landscaped gardens and southerly aspects. The ground floor is extended and versatile: a 25' sitting room opens to the garden, there's a breakfast room, utility area and a well‑fitted kitchen with integrated appliances. One ground-floor reception could serve as a fourth bedroom or formal dining room, useful for growing families or home working.
Upstairs provides three double bedrooms served by a single, well-appointed bathroom with both bath and separate shower. Practical features include gas central heating, sealed-unit double glazing (post‑2002) and a C EPC rating. The property is freehold, offered chain-free and located about a mile from Eastbourne town centre and station, with several Good-rated primary and secondary schools close by.
Notable considerations: the house has only one main bathroom for four bedrooms and council tax is in Band E (above average). Some walls are recorded as cavity construction with no installed insulation (assumed), so buyers should budget for energy-efficiency upgrades if required. Measurements and services have not been tested; prospective buyers should verify all details and the working order of appliances and systems.
This home will suit families seeking character, generous private gardens and convenient access to town amenities. It also offers scope for modest improvement to increase energy efficiency and adapt layout to changing needs.
4 bedroom detached house for sale in Selwyn Drive, Eastbourne, East Sussex, BN21 — £579,000 • 4 bed • 2 bath • 1505 ft²
4 bedroom detached house for sale in Willingdon Road, Eastbourne, BN21 1TR, BN21 — £670,000 • 4 bed • 1 bath • 1652 ft²
3 bedroom detached house for sale in Park Avenue, Eastbourne, BN22 9QN, BN22 — £575,000 • 3 bed • 1 bath • 1432 ft²
4 bedroom detached house for sale in Carew Road, Eastbourne, East Sussex, BN21 — £875,000 • 4 bed • 2 bath • 2131 ft²
3 bedroom detached house for sale in Cherry Garden Road, Eastbourne, BN20 8EY, BN20 — £475,000 • 3 bed • 2 bath • 1206 ft²
4 bedroom detached house for sale in Pashley Road, Eastbourne, East Sussex, BN20 — £795,000 • 4 bed • 2 bath • 1922 ft²


















































































