Single-level living on a large corner plot near excellent schools and town links.
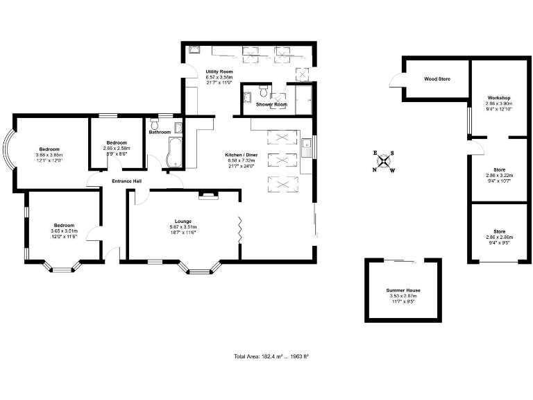
Freehold three-bedroom single-storey bungalow, 894 sq ft
A deceptively roomy three-bedroom, single-level home recently renovated to a high standard, set on a large corner plot in north Ipswich. The L-shaped layout includes a generous open-plan kitchen/breakfast room with skylights, a living room with a wood-burning stove, and two bathrooms — practical for multi-generational living or downsizers wanting space without stairs. Off-street parking for up to five cars, extensive outbuildings and a triple-brick garage/workshop add real utility for cars, hobbies or storage.
Positioned within the Northgate/St Alban's school catchments and close to local shops and town centre links, this freehold property suits families who value schooling and commute options. Modern touches and fast broadband/mobiles make it ready for everyday life, while the large garden and summer house provide private outdoor space and scope for further landscaping or extension (subject to planning).
Practical points: the bungalow benefits from gas central heating, UPVC double glazing and a covered walkway to useful storage. Flood risk is low and the wider area is affluent with low crime. The accommodation is well proportioned for its 894 sq ft but buyers seeking generous room sizes should note some rooms are medium rather than large.
Negatives to consider: while recently renovated, the layout is single-storey and may limit major upward extensions; any significant extension or conversion would require planning permission. The property offers strong appeal to downsizers or families but purchasers wanting a large modern house with multiple reception rooms may find footprint limits without rebuilding.
3 bedroom bungalow for sale in Evesham Close, Ipswich, Suffolk, IP2 — £300,000 • 3 bed • 1 bath • 915 ft²
2 bedroom detached bungalow for sale in Westerfield Road, Ipswich, IP4 — £395,000 • 2 bed • 1 bath • 1081 ft²
3 bedroom detached bungalow for sale in Sunningdale Avenue, Ipswich, IP4 — £500,000 • 3 bed • 1 bath • 1117 ft²
3 bedroom bungalow for sale in Benacre Road, Ipswich, IP3 9LE, IP3 — £280,000 • 3 bed • 1 bath • 898 ft²
3 bedroom detached bungalow for sale in Bloomfield Street, Ipswich, IP4 — £280,000 • 3 bed • 1 bath • 522 ft²
3 bedroom bungalow for sale in Dorset Close, Ipswich, IP4 — £400,000 • 3 bed • 1 bath • 830 ft²


















































































