**Standout Features:**
- Chain-free sale for a quick move-in.
- Recently installed Air Source Heat Pump central heating system.
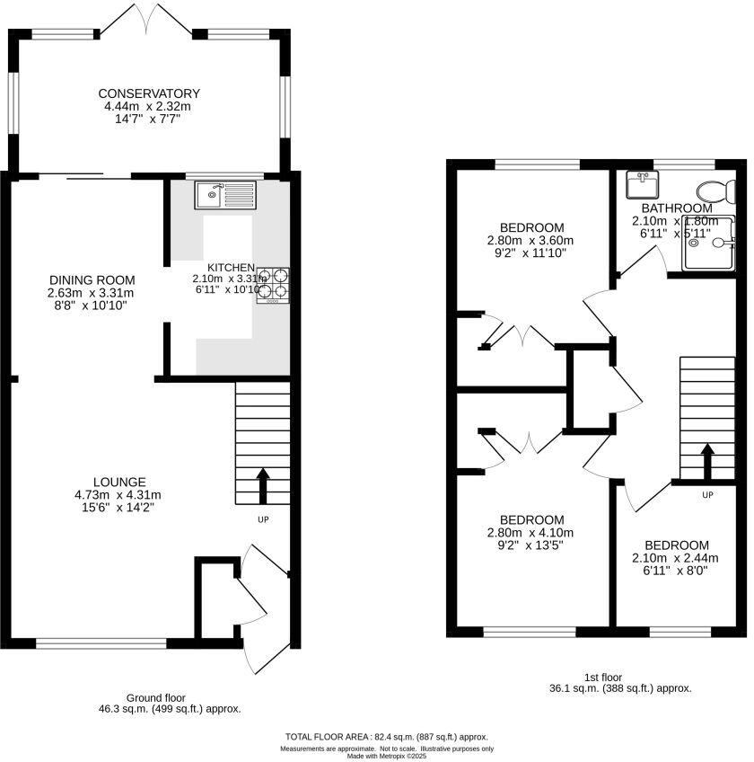
- Spacious living area with a large conservatory.
- Three bedrooms, two with built-in wardrobes.
- Paved rear garden for easy upkeep.
- Garage en-block for convenient parking.
- Low crime area, excellent mobile signal, and fast broadband speeds.
**Summary:**
Explore the potential of this mid-century modern terraced home, ideally suited for families and first-time buyers alike. Offering three bedrooms, a spacious living room flowing into a light-filled conservatory, and a shower room, this property boasts ample living space across 887 sq ft. The recently updated Air Source Heat Pump ensures energy-efficient comfort year-round, while double-glazed windows enhance insulation.
Enjoy the convenience of a paved rear garden, perfect for minimal maintenance, alongside a garage en-bloc for secure parking. Located in the affluent CR0 area, you're within easy reach of local shops and excellent transport connections to East Croydon and central London. Families will appreciate nearby reputable schools, with several rated 'Good' by Ofsted.
This home is presented with no onward chain, making it a rare find in today's market—perfect for those looking to settle in quickly. With a touch of renovation, this property could become your dream family home. Don’t miss out on this opportunity; schedule your viewing today!
3 bedroom terraced house for sale in Osward, Court Wood Lane, Croydon, CR0 — £400,000 • 3 bed • 1 bath • 1095 ft²
3 bedroom terraced house for sale in Bardolph Avenue, Forestdale, Croydon, CR0 — £400,000 • 3 bed • 1 bath • 974 ft²
3 bedroom terraced house for sale in Court Wood Lane, CROYDON, Surrey, CR0 — £382,200 • 3 bed • 1 bath • 1039 ft²
3 bedroom end of terrace house for sale in Grenville Road, New Addington, Croydon, CR0 — £400,000 • 3 bed • 1 bath • 929 ft²
3 bedroom semi-detached house for sale in Bedlow Way, Croydon, CR0 — £525,000 • 3 bed • 1 bath • 823 ft²
3 bedroom terraced house for sale in Viney Bank, Court Wood Lane, South Croydon, CR0 — £400,000 • 3 bed • 2 bath • 912 ft²






































































