Compact family home with garage and loft potential close to good schools.
Chain-free three-bedroom semi-detached house
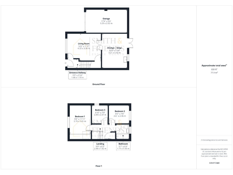
A well-presented three-bedroom semi-detached house in the sought-after Sober Hall area of Ingleby Barwick. The property offers practical family accommodation across two floors, a single garage, resin driveway and an enclosed rear garden — all set within a very low-crime, affluent neighbourhood and within walking distance of several good primary and secondary schools.
The layout is compact and efficient: entrance hallway, living room, open-plan kitchen/diner with French doors to the garden, three first-floor bedrooms and a family bathroom. The loft is fully boarded with a ladder, providing clear potential to extend or convert subject to planning and building regulations. The home is chain-free, which simplifies a quick purchase for first-time buyers or buy-to-let investors.
Size and plot are modest: the house measures around 656–839 sq ft depending on measurement source and sits on a small plot. The interior is generally in good order but some cosmetic updates (for example carpeting and personalising finishes) may be needed to maximise value. Overall this is a practical, low-maintenance home in a family-friendly location with solid rental and purchase appeal.
3 bedroom end of terrace house for sale in Broomlee Close, Ingleby Barwick, TS17 — £169,995 • 3 bed • 1 bath • 915 ft²
3 bedroom detached house for sale in Langleeford Way, Ingleby Barwick, TS17 — £230,000 • 3 bed • 2 bath • 819 ft²
3 bedroom detached house for sale in Tarr Steps, Ingleby Barwick, TS17 — £259,950 • 3 bed • 2 bath • 703 ft²
3 bedroom detached house for sale in Tarr Steps, Ingleby Barwick, TS17 — £235,000 • 3 bed • 2 bath • 934 ft²
3 bedroom semi-detached house for sale in The Orchard, Ingleby Barwick, TS17 — £182,500 • 3 bed • 2 bath • 587 ft²
3 bedroom semi-detached house for sale in Nevern Crescent, Ingleby Barwick, Stockton-On-Tees, TS17 — £170,000 • 3 bed • 1 bath • 711 ft²


























































