Semi-rural two-bed with large garden, open-plan living and strong family potential..
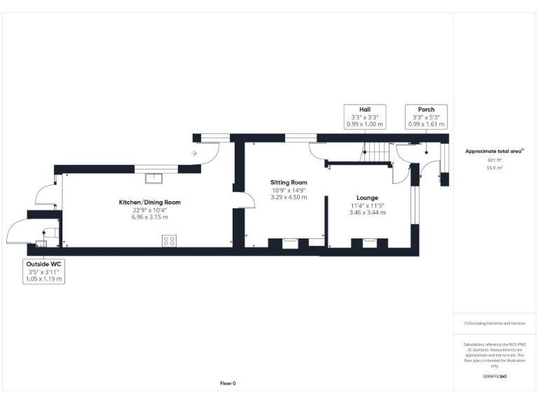
- Bright open-plan kitchen/dining with vaulted ceiling and skylight
- Two reception rooms and working log burner in lounge
- Large rear garden with patio and outside WC
- Driveway providing off-street parking
- Two bedrooms, family bathroom; 823 sq ft overall
- Solid brick walls likely uninsulated; energy improvements advised
- Heating: older boiler using house coal; replacement recommended
- EPC rating D; may require modernisation and possible rewire
A character-filled semi-detached home set on a quiet lane with open field views to the front and a generous rear garden. The property’s large rear extension creates a bright open-plan kitchen/dining/living space with a vaulted ceiling and skylight — ideal for family life and entertaining. Two reception rooms plus a log burner add flexibility and day-to-day comfort.
Practical highlights include a driveway for off-street parking, an outside WC and a sizeable lawned garden with patio and mature shrubs. Local life in Saughall is village-focused with good primary schools nearby, regular bus links and easy access to Chester within a 15-minute drive.
Buyers should note this house dates from the early 20th century with solid brick walls that are assumed uninsulated and an older boiler fuelled by house coal. The EPC rating is D; improvement works (insulation, heating modernisation and possible rewiring) will materially reduce running costs and improve comfort. Overall the home offers strong family potential for those willing to invest modestly to update services and thermal performance.
4 bedroom semi-detached house for sale in Hermitage Road, Saughall, CH1 — £400,000 • 4 bed • 2 bath • 1367 ft²
4 bedroom semi-detached house for sale in Hermitage Road, Saughall, CH1 — £545,000 • 4 bed • 2 bath • 1410 ft²
3 bedroom semi-detached house for sale in The Ridings, Saughall, Chester, Cheshire, CH1 — £300,000 • 3 bed • 1 bath • 1199 ft²
3 bedroom semi-detached house for sale in Haymakers Way, Saughall, CH1 — £280,000 • 3 bed • 1 bath • 1130 ft²
3 bedroom semi-detached house for sale in Lodge Lane, Saughall, Chester, Cheshire, CH1 — £295,000 • 3 bed • 1 bath • 928 ft²
4 bedroom detached house for sale in Willow Hey, Saughall, CH1 — £425,000 • 4 bed • 2 bath • 1313 ft²


























































