**Highlights:**
- Well-presented 2-bedroom first-floor apartment
- Located in a quiet cul-de-sac near Whitby town center
- Allocated parking space and communal garden
- Low crime rate and excellent mobile signal
- Leasehold with 979 years remaining; affordable service charge and ground rent
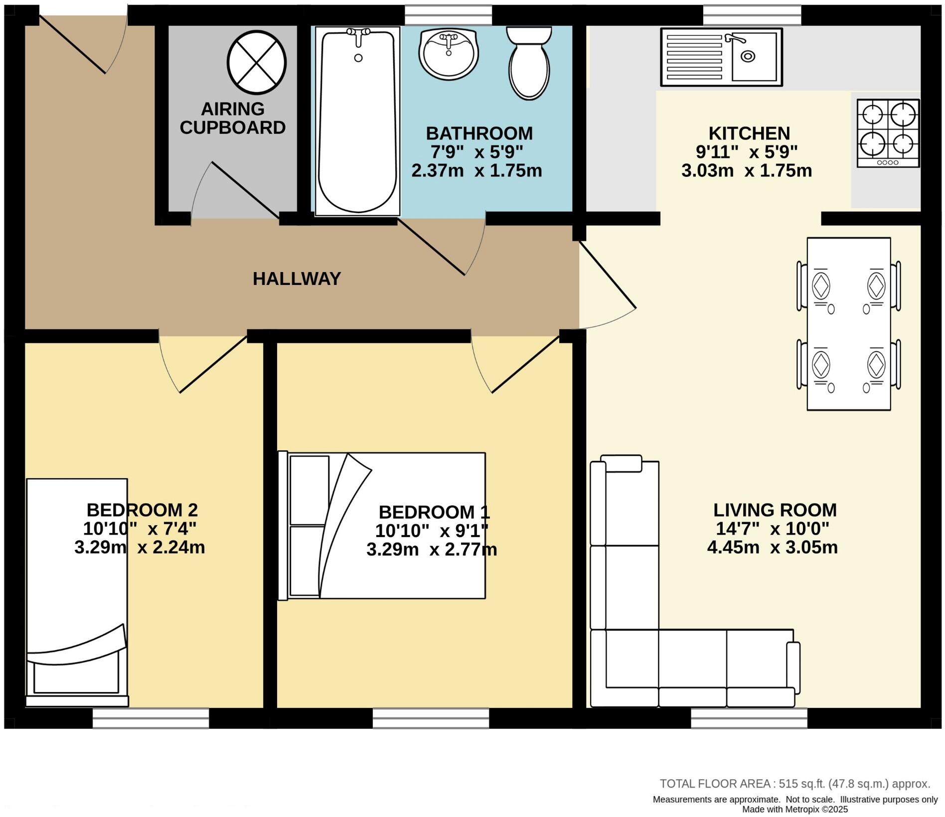
Welcome to this charming first-floor apartment in the heart of Whitby, perfect for small families or couples seeking a cozy home close to local amenities. This two-bedroom flat features a modern kitchen with integrated appliances, a bright living room, and a well-appointed bathroom. Enjoy the benefits of a communal garden and your own allocated parking space, streamlining your daily routines. The property is positioned in a peaceful setting, just a half-mile from the bustling town center and the picturesque cliff tops, making it an ideal retreat for those who cherish community living and convenience.
While compact at approximately 515 square feet, the flat is designed for efficient use of space and comfort. The electric storage heaters ensure a warm ambiance, while double-glazing enhances energy efficiency. As a leasehold property, you’ll have the flexibility to explore future renovations to tailor the space to your liking. With an attractive price of £175,000 and affordable council tax, this gem is ready for its new owner. Don’t miss your chance to experience life in this idyllic coastal town—schedule your viewing today!
2 bedroom flat for sale in Flat 49, Fairways Court, Upgang Lane, Whitby, North Yorkshire, YO21 3JY, YO21 — £235,000 • 2 bed • 1 bath • 849 ft²
1 bedroom apartment for sale in Hillside Apartments, Whitby, YO21 — £127,000 • 1 bed • 1 bath • 399 ft²
2 bedroom apartment for sale in 8 Mount Square, Whitby, YO21 — £175,000 • 2 bed • 1 bath • 536 ft²
2 bedroom flat for sale in Flat 11, Kirkham House, Whitby, YO21 — £125,000 • 2 bed • 1 bath • 555 ft²
2 bedroom apartment for sale in 14 Prospect Hill, Whitby, North Yorkshire, YO21 — £100,000 • 2 bed • 2 bath • 714 ft²
2 bedroom apartment for sale in Flat 6, 17 Abbey Terrace, YO21 — £164,950 • 2 bed • 1 bath • 509 ft²










































