Chain‑free two‑bed mews with large rear garden — refurbishment project with commuter links..
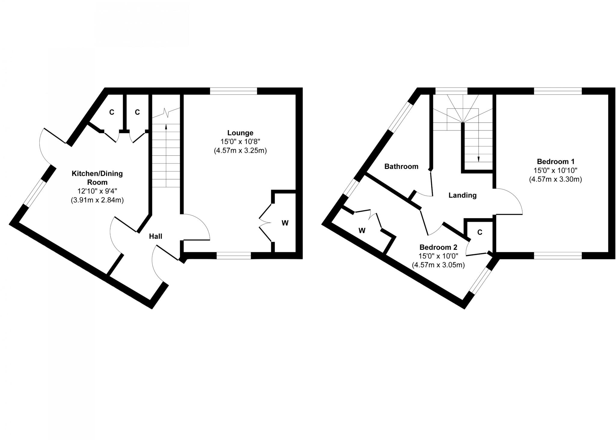
Freehold, chain free two-bedroom mews property (circa 592 sq ft).
Corner plot with larger-than-neighbouring rear garden and good landscaping potential.
Requires full modernisation: dated kitchen, worn finishes and likely cosmetic works.
Built c.1930; double glazing and gas central heating present but services unverified.
Very deprived local area and above-average crime — impacts long-term value and costs.
Good transport links: near M27 and Parkway Railway Station; fast broadband and excellent mobile signal.
Small overall internal size — better suited to first-time buyers or investors.
Council Tax Band B (relatively cheap); no flood risk.
Quiet cul‑de‑sac position and notably larger-than-neighbouring rear garden give this two-bedroom mews house clear upside for buyers prepared to renovate. The property is freehold and offered chain free, with gas central heating and double glazing already in place — useful fundamentals while you plan improvements.
Internally the house is compact (approximately 592 sq ft) and requires full modernisation: dated kitchen, worn finishes, and general cosmetic and service updates are needed. The layout suits first‑time buyers or buy‑to‑let investors seeking a straightforward two-bedroom home with scope to increase value through refurbishment or modest rear extension (subject to consent).
Location is practical for commuting: close to M27 links and Parkway station, with good mobile signal and fast broadband. Nearby schools include several rated Good and an Outstanding secondary, which may appeal to young families. Be aware the surrounding area is classified as very deprived with above‑average crime — factor this into long‑term plans and insurance costs.
This is a value‑led purchase: low council tax (Band B), no flood risk, decent plot size and corner position within the crescent. For a buyer willing to invest time and money, the property offers tangible redevelopment and rental potential; for someone seeking a ready-to-move-in home, substantial work will be required.
2 bedroom terraced house for sale in Braishfield Close, Maybush, Southampton, Hampshire, SO16 — £200,000 • 2 bed • 1 bath • 886 ft²
3 bedroom terraced house for sale in Octavia Road, Southampton, Hampshire, SO18 — £180,000 • 3 bed • 1 bath • 911 ft²
3 bedroom house for sale in Mansbridge Road, Mansbridge, SO18 — £260,000 • 3 bed • 1 bath • 537 ft²
3 bedroom terraced house for sale in Claudeen Close, Mansbridge, SO18 — £250,000 • 3 bed • 1 bath • 588 ft²
2 bedroom semi-detached house for sale in Ferndene Way,Southampton,SO18 4SZ, SO18 — £260,000 • 2 bed • 1 bath • 622 ft²
2 bedroom terraced house for sale in Torridge Gardens, SOUTHAMPTON, Hampshire, SO18 — £250,000 • 2 bed • 1 bath • 599 ft²










































