Characterful village home with private parking and a vaulted reception space.
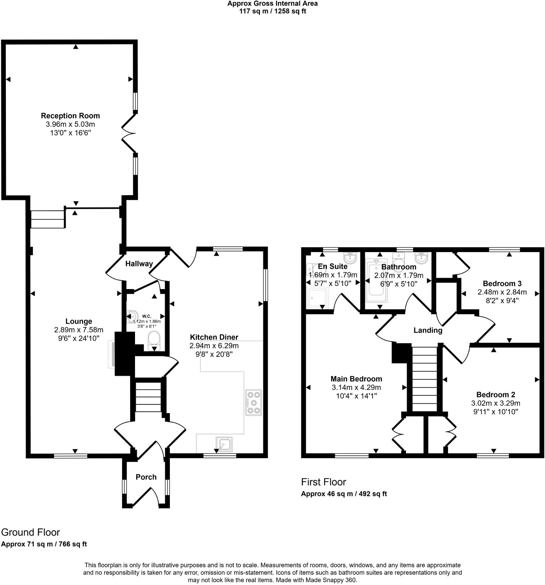
3 bedrooms with ensuite to the main bedroom
Vaulted converted apple store with exposed beams and patio doors
Large kitchen/diner with built-in appliances and peninsula unit
Gated gravel forecourt with parking for 2–3 cars
Enclosed rear courtyard garden, low-maintenance and private
Heated by electric room heaters; gas hob supplied by external bottle
EPC rating D — opportunity to improve energy efficiency
Sold freehold and chain free
Orchard End Cottage is a spacious, detached three-bedroom home placed in the heart of Winkleigh, ideal for families wanting village life on a generous plot. The house combines a large kitchen/diner, a main reception with a log burner and a vaulted converted apple store with exposed beams and patio doors — a bright, characterful space for everyday living and entertaining.
Practical features include gated gravel parking for two to three cars, a private enclosed rear courtyard and an ensuite to the main bedroom. The layout works well for family life with downstairs WC, good built-in storage in bedrooms and easy flow from kitchen to garden. The property is sold chain free.
Buyers should note the property is heated by electric room heaters and uses bottled gas for the hob; the EPC is rated D. While the home presents attractive character and a large overall size, some updating and ongoing maintenance should be expected to personalise finishes and improve energy efficiency.
Located just off the village square, amenities including a shop, post office, primary school and pubs are within easy walking distance. Regular bus services connect Winkleigh to larger centres such as Okehampton and Barnstaple, making this a practical rural base for family life.
3 bedroom terraced house for sale in Park Place, Eggesford Road, Winkleigh, EX19 — £325,000 • 3 bed • 3 bath • 1478 ft²
3 bedroom semi-detached house for sale in The Village, Wembworthy, Chulmleigh, EX18 — £375,000 • 3 bed • 1 bath • 1458 ft²
2 bedroom cottage for sale in Castle Street, Winkleigh, EX19 — £240,000 • 2 bed • 1 bath • 519 ft²
3 bedroom terraced house for sale in Vine Street, Winkleigh, EX19 — £250,000 • 3 bed • 1 bath • 920 ft²
2 bedroom end of terrace house for sale in Coopers Hill, Winkleigh, EX19 8JF, EX19 — £165,000 • 2 bed • 1 bath • 568 ft²
3 bedroom terraced house for sale in Barnstaple Street, Winkleigh, EX19 — £290,000 • 3 bed • 1 bath • 1130 ft²






















































































