Ideal commuter flat with garage, long lease and close town access.
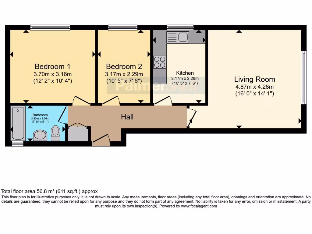
- Two double bedrooms providing comfortable sleeping space
- 611 sq ft overall — compact living footprint
- 16' lounge/diner and modern 10'5" kitchen
- Garage plus allocated off-road parking included
- UPVC double glazing and gas central heating
- Long lease of c.900+ years (leasehold)
- Located near Bournemouth Train Station and town centre
- Cosmopolitan student neighbourhood; possible noise and higher footfall
This well-presented two double bedroom flat offers compact, practical living ideal for a first-time buyer seeking strong transport links. Set within a three-storey block, the accommodation includes a 16' lounge/diner, a modern 10'5" kitchen, contemporary bathroom, UPVC double glazing and gas central heating. A rare benefit at this price is a garage plus allocated off-road parking and a long 900+ year lease.
Positioned within walking distance of Bournemouth Train Station and the town centre, the flat suits commuters and buyers wanting easy access to shops, buses and local amenities. Nearby schools include highly regarded options such as Bournemouth School (Outstanding), and the area has fast broadband and excellent mobile signal.
Buyers should note the flat is small at c.611 sq ft, set in a cosmopolitan student neighbourhood with potential for higher footfall and occasional noise. The wider area is classified as deprived, which may affect long-term resale dynamics. Council tax is low and there is no flood risk. Overall, this is a straightforward, move-in-ready home with strong commuter appeal and potential as a rental investment.
2 bedroom apartment for sale in Wimborne Road, Bournemouth, Dorset, BH2 — £215,000 • 2 bed • 1 bath • 593 ft²
2 bedroom ground floor flat for sale in 59 Wellington Road, Bournemouth, BH8 — £219,500 • 2 bed • 1 bath • 737 ft²
2 bedroom flat for sale in Lowther Road, Bournemouth, Dorset, BH8 — £210,000 • 2 bed • 1 bath • 588 ft²
2 bedroom ground floor flat for sale in Richmond Park Road, Bournemouth, Dorset, BH8 — £175,000 • 2 bed • 1 bath • 441 ft²
2 bedroom flat for sale in Dean Park Road, Bournemouth, Dorset, BH1 — £170,000 • 2 bed • 1 bath • 738 ft²
1 bedroom flat for sale in Bournemouth, BH8 — £169,950 • 1 bed • 1 bath • 437 ft²






























































