Affordable character home with large garden, ideal for over-60s looking to personalise.
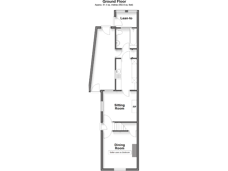
Victorian end-of-terrace with bay window and double glazing
Requires full modernisation throughout; renovation needed
Large, extensive rear garden with shed — currently overgrown
Compact interior ~504 sq ft; small plot, easy maintenance
Second bedroom partially partitioned; reduced bedroom size
Eligible for Home for Life Lifetime Lease for age 60+ buyers
Full market price £175,000; guide Lifetime Lease price £115,500
Area deprivation high; recorded crime above average
A two-bedroom period end-of-terrace offering sizable rooms and a large rear garden, presented as a renovation project suited to someone wanting to personalise a home. The house retains Victorian character with a bay window and double glazing, while central heating runs from a mains-gas boiler. Its compact footprint (about 504 sq ft) and manageable plot will appeal to downsizers seeking outdoor space without excessive upkeep.
This property is eligible for the Home for Life Lifetime Lease for purchasers aged 60+, which can reduce the purchase cost. The full market price is £175,000; the illustrative Lifetime Lease guide price shown is £115,500 (typical savings vary by age and circumstances and up to 50% share options are available). Buyers should use the Homewise calculator or request a personalised quote to understand the exact Lifetime Lease cost for their situation.
Practical drawbacks are clear: the house needs modernisation throughout, the second bedroom has been partially partitioned to form a cloakroom reducing usable bedroom space, and the rear garden and shed are overgrown and require attention. The local area scores high for deprivation and recorded crime is above average, so buyers should factor wider neighbourhood considerations into their choice. Council tax is very low, and connectivity (mobile and broadband) is strong.
This will suit an over-60 buyer seeking an affordable entry into a character property with garden potential, or someone prepared to carry out refurbishment to add value and comfort. Viewings are recommended to appreciate room proportions and the garden's potential.
2 bedroom terraced house for sale in Upton Road, Haylands, Ryde, Isle of Wight, PO33 — £139,000 • 2 bed • 1 bath • 560 ft²
2 bedroom end of terrace house for sale in Horsebridge Hill, Newport, Isle of Wight, PO30 — £132,000 • 2 bed • 1 bath • 609 ft²
3 bedroom semi-detached house for sale in St. Michael's Avenue, Haylands, Ryde, Isle of Wight, PO33 — £218,500 • 3 bed • 2 bath • 1098 ft²
2 bedroom end of terrace house for sale in High Street, Ryde, Isle of Wight, PO33 — £175,000 • 2 bed • 1 bath • 504 ft²
1 bedroom apartment for sale in Ashey Road, Ryde, Isle of Wight, PO33 — £76,500 • 1 bed • 1 bath
2 bedroom end of terrace house for sale in Clarence Road, Newport, Isle of Wight, PO30 — £155,500 • 2 bed • 1 bath • 684 ft²


























































