Spacious four-bedroom home with garage and recent upgrades near schools and station.
Detached 4-bedroom family home with conservatory and separate dining room
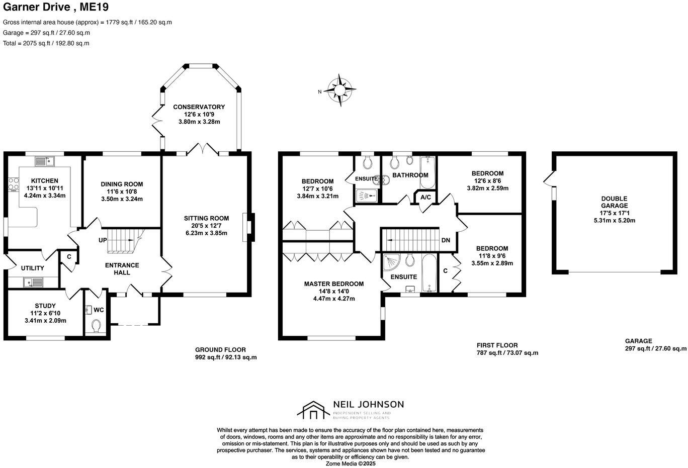
Spacious and well‑proportioned, this detached four-bedroom home in Bradbourne Fields delivers flexible family living across about 1,800–2,075 sqft. Ground-floor rooms include a bright sitting room that opens to a conservatory, a separate dining room, a fitted kitchen with utility and a dedicated study — practical for family life and home working. A gated driveway and detached double garage provide secure parking and useful storage.
Upstairs are four genuine double bedrooms, including a principal suite with an en-suite and a second bedroom with its own en-suite. Built-in wardrobes in several rooms increase everyday storage and the modern family bathroom serves the remaining bedrooms. Recent upgrades include a new boiler (Jan 2022), new radiators (Dec 2021) and a new kitchen (Oct 2022), reducing immediate maintenance needs.
Outside, attractive, well-kept front and rear gardens offer privacy and a manageable outdoor space for children and entertaining. The elevated position overlooks the development green and the house sits close to good local schools and East Malling station, making it practical for families and commuters. Flooding risk is low and the property benefits from mains gas central heating and double glazing.
Notable negatives are factual and important for buyers: this area records above‑average crime statistics and has been flagged for local area deprivation; prospective owners should consider local community factors. The property is in Council Tax Band G, so running costs will be relatively high. Overall, this is a modern, roomy family home with useful recent improvements, but buyers should weigh the higher tax and local crime profile when deciding to view.
4 bedroom detached house for sale in Garner Drive, East Malling, West Malling, Kent, ME19 — £650,000 • 4 bed • 2 bath • 1486 ft²
4 bedroom detached house for sale in Chatfield Way, East Malling, West Malling, Kent, ME19 6QD, ME19 — £585,000 • 4 bed • 2 bath • 1269 ft²
3 bedroom detached house for sale in Reeves Court, East Malling, West Malling, ME19 — £475,000 • 3 bed • 2 bath • 1219 ft²
4 bedroom detached house for sale in Cottenham Close, East Malling, West Malling, ME19 — £595,000 • 4 bed • 2 bath • 1414 ft²
4 bedroom detached house for sale in Rocks Close, East Malling, West Malling, Kent, ME19 — £600,000 • 4 bed • 2 bath • 1223 ft²
4 bedroom link detached house for sale in Vigor Close, East Malling, Kent, ME19 — £675,000 • 4 bed • 3 bath • 1680 ft²






















































































