Move-in ready starter home with modern finishes and low-maintenance gardens.
- Fully renovated with new render, sash windows and doors
- Modern fitted kitchen with integrated appliances and Velux window
- Landscaped low-maintenance front and rear gardens, sandstone paving
- Ground-floor W.C.; first-floor utility platform with plumbing
- Single family bathroom only (corner bath plus walk-in shower)
- Approx 829 sq ft; compact rooms and small plot
- Freehold tenure; low council tax and no flood risk
- Area classed very deprived with average local crime statistics
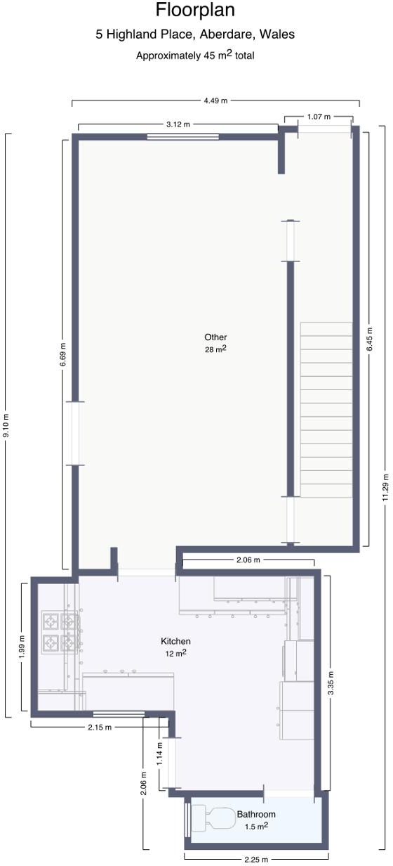
This mid-terrace three-bedroom home is newly renovated and offered freehold, ready for immediate occupation. Upgrades include new silicone render, new sash windows, new doors, and a contemporary kitchen with integrated appliances and a Velux roof window. The property is compact (around 829 sq ft) and designed for low-maintenance living with landscaped front and rear gardens finished in sandstone paving and artificial grass.
Living space is practical: a comfortable lounge with understairs storage, a modern kitchen with ground-floor W.C., and a useful utility platform with plumbing on the first floor. The family bathroom includes both a corner bath and a separate walk-in shower. Rear lane access adds delivery convenience. The house will suit first-time buyers or small families wanting a move-in ready home without immediate renovation work.
Be clear about limitations: accommodation is average-sized with a single bathroom and a small plot, so space is compact. The property sits in an area classed as very deprived with average local crime statistics; prospective buyers should consider local social and economic factors. Parking is limited (no confirmed private driveway), and purchasers should verify on-street parking availability.
Practical positives include low council tax, no identified flood risk, excellent mobile signal and fast broadband — useful for commuters and home workers. While the finish is modern throughout, any buyer who values larger rooms or additional bathrooms may find the layout restrictive. A straightforward purchase for those prioritising a move-in ready, low-maintenance starter home in Aberdare.
3 bedroom terraced house for sale in Brook Street, Aberdare, CF44 — £128,000 • 3 bed • 1 bath • 732 ft²
3 bedroom terraced house for sale in Abernant Road, Abernant, CF44 — £239,995 • 3 bed • 2 bath • 1039 ft²
3 bedroom terraced house for sale in Pembroke Street, Aberdare, CF44 — £114,995 • 3 bed • 1 bath • 776 ft²
3 bedroom end of terrace house for sale in Taff Street, Ferndale, Rhondda Cynon Taff, CF43 — £149,950 • 3 bed • 1 bath • 862 ft²
2 bedroom terraced house for sale in Ynys-llwyd Street, Aberdare, CF44 7NW, CF44 — £119,750 • 2 bed • 1 bath • 756 ft²
3 bedroom terraced house for sale in Trevor Street, Aberdare, CF44 7NL, CF44 — £189,950 • 3 bed • 2 bath


























































































































