Refurbished apartment minutes from the station with communal gardens and lift access.
Gated communal parking and electric entry
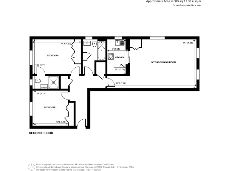
A well-presented two-bedroom, two-bath apartment in a gated modern Tudor-style development, set a short walk from Woking town centre and mainline station. Recent investment includes a replacement kitchen and fully refitted bathrooms; the flat has been freshly redecorated throughout and offers bright, elongated living/dining space with multiple windows.
Practical features suit everyday living: a lift serves the upper floors, gated communal parking is provided, and a partially boarded loft gives extra storage. The communal gardens and terrace provide pleasant outdoor space, though there is no private garden attached to the apartment.
Ownership is leasehold with a long remaining term (162 years) and an average service charge of £2,481 per year; council tax is above average. Constructed in 1998 with no cladding concerns, the property is a straightforward purchase for buyers seeking a central, low-crime urban location with fast rail links to London.
This apartment will appeal to first-time buyers and professionals wanting a ready-to-move-in home near transport and town amenities, and to investors seeking a centrally located rental with strong tenant demand. Note the communal nature of outside space and ongoing service charge when budgeting ownership costs.
2 bedroom flat for sale in Burleigh Gardens, Woking, GU21 — £240,000 • 2 bed • 2 bath • 646 ft²
2 bedroom apartment for sale in Abingdon Court, 9 Heathside Road, GU22 — £324,500 • 2 bed • 2 bath • 859 ft²
2 bedroom apartment for sale in York Road, Woking, Surrey, GU22 — £200,000 • 2 bed • 2 bath • 624 ft²
2 bedroom flat for sale in Hipley Street, Old Woking, Woking, GU22 — £275,000 • 2 bed • 2 bath • 698 ft²
2 bedroom flat for sale in Woking, Surrey, GU21 — £285,000 • 2 bed • 2 bath • 756 ft²
2 bedroom flat for sale in Woking, Surrey, GU22 — £250,000 • 2 bed • 2 bath • 581 ft²






























































