Spacious family layout near Hertford North station and top schools.
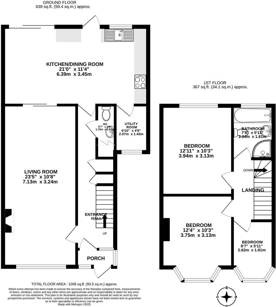
- Chain-free three bedroom 1930s end-terrace
- Extended 21' kitchen/diner plus separate utility room
- Large 23' living room with bay window
- Landscaped west-facing rear garden, small plot
- Off-street driveway parking with EV charging point
- Solid brick walls likely lack insulation; may need upgrading
- Medium flood risk in the area — consider insurance
- Requires internal modernisation and some external maintenance
A spacious three-bedroom 1930s end-terrace offered chain-free in a highly sought Hertford location. The house sits a short walk from Hertford North station and close to well-regarded primary and secondary schools, making daily commutes and school runs straightforward.
Ground floor living is generous: an extended 23' living room and a 21' kitchen/diner with separate utility room give flexible space for family life and entertaining. The landscaped west-facing rear garden offers afternoon and evening sun; there is off-street parking to the front with an EV charging point.
Upstairs provides three bedrooms and a four-piece bath and shower room. The property is solid-brick 1930s construction with double glazing and mains gas heating, but it would benefit from internal modernisation and some external upkeep. Buyers should note a medium flood risk for the area and the likely absence of wall insulation in original solid walls.
This home suits families seeking convenient transport links and schools, or buyers wanting a characterful property with scope to update. Chain-free sale gives flexibility to move quickly, while modest plot size limits extensive garden expansion.
3 bedroom detached house for sale in Sandy Close, Hertford, SG14 — £900,000 • 3 bed • 1 bath • 1243 ft²
3 bedroom semi-detached house for sale in Fordwich Hill, Hertford, SG14 — £775,000 • 3 bed • 1 bath • 870 ft²
2 bedroom terraced house for sale in Port Vale, Hertford, SG14 — £430,000 • 2 bed • 2 bath • 712 ft²
3 bedroom terraced house for sale in Page Road, Hertford, SG13 — £450,000 • 3 bed • 1 bath • 982 ft²
3 bedroom terraced house for sale in Clyde Terrace, Hertford, SG13 — £435,000 • 3 bed • 1 bath • 953 ft²
3 bedroom end of terrace house for sale in North Road, Hertford, SG14 — £850,000 • 3 bed • 1 bath • 1600 ft²


















































































