**Standout Features:**
- **Location:** Sought-after West Bridgford, tucked away off a private driveway
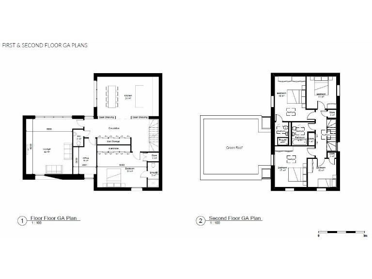
- **Planning Permission:** Approved (Ref: 23/01251/FUL) for a Grand Designs-style home
- **Size:** Generous plot of 2,500 sq ft; ideal for bespoke living
- **Bedrooms & Bathrooms:** Accommodates 5 bedrooms and 3 bathrooms
- **Community:** Situated within a highly regarded school catchment area
- **Tenure:** Freehold, chain-free, offering flexibility for development
- **Privacy & Convenience:** Combines luxury living with tranquil surroundings
This is a rare opportunity to bring your dream home to life in West Bridgford, a highly sought-after area known for its affluence and family-friendly amenities. The approved planning permission enables you to design a spacious contemporary residence on an expansive plot, perfect for families or investors looking for long-term value. With 5 bedrooms and 3 bathrooms planned, this Grand Designs-style home invites you to create an architectural marvel nestled in a private setting.
The location offers not only a quiet sanctuary but also proximity to highly rated schools, making it an attractive choice for families. Enjoy the peace of mind that comes from residing in a community deemed affluent with excellent local amenities and robust public transport options. Don't miss out on this exclusive chance to secure a unique property where you can innovate and thrive—viewing the plot is essential! Reach out today to take the first step in creating a distinctive luxury residence.
Land for sale in Ruddington Lane, Wilford, Nottinghamshire, NG11 7BY, NG11 — £200,000 • 1 bed • 1 bath
Land for sale in Trent Boulevard, West Bridgford, Nottingham, NG2 — £475,000 • 1 bed • 1 bath • 872 ft²
5 bedroom detached house for sale in Wilford Lane, West Bridgford, NG2 — £1,700,000 • 5 bed • 4 bath • 2895 ft²
4 bedroom detached house for sale in Stamford Road, West Bridgford, NG2 — £795,000 • 4 bed • 2 bath • 1828 ft²
Plot for sale in Wilford Lane, West Bridgford, Nottingham, NG2 — £1,350,000 • 1 bed • 1 bath • 6225 ft²
4 bedroom detached house for sale in Main Road, Wilford, Nottingham, Nottinghamshire, NG11 — £775,000 • 4 bed • 2 bath • 2175 ft²


















































