Freehold unit with gated loading, offices and extensive yard, ideal for growing operations.
Freehold industrial unit of 14,548 ft² (approx. 1,352 m²)
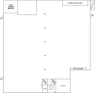
A substantial freehold industrial unit on Oldington Trading Estate offering 14,548 ft² of open-plan warehousing and two-storey offices. Constructed around 20 years ago, the twin-portal-frame building has 4.8m eaves, a 4.5m-high roller shutter and gated loading, making it ready for distribution, light manufacturing or bulky storage.
Practical workplace services include three-phase electricity, mains gas and water, LED lighting, compressed airlines and gas blow-air heaters. The site includes staff/visitor parking and sits on a very large plot with easy access to the A451 employment corridor, nearby A449 and the national motorway network.
Important considerations: the estate sits in a very deprived area with above-average crime rates, which may affect security requirements and insurance costs. The outgoing tenant is completing repair liabilities prior to vacating; vacant possession is anticipated June 2024. The property is listed with a rateable value of £56,500 and the sale is subject to VAT.
For an investor or operator seeking scale and straightforward M&E, this is a value-driven freehold with good transport links and robust industrial services. Buyers should budget for local-area security measures and review the outgoing tenant’s repair work on inspection.
Light industrial facility for sale in Unit 13-14, Oldington Trading Estate, Kidderminster, Worcestershire, DY11 7QP, DY11 — POA • 1 bed • 1 bath • 14548 ft²
Industrial development for sale in Units 18, 19 20 Oldington Trading Estate, Kidderminster, Oldington Trading Estate, Kidderminster, DY11 7QP, DY11 — £800,000 • 1 bed • 1 bath • 16233 ft²
Light industrial facility for sale in Sandy Lane Industrial Estate, DY13 — £145,000 • 1 bed • 1 bath • 2001 ft²
Commercial property for sale in Sandy Lane Industrial Estate, Stourport-On-Severn, Worcestershire, DY13 — £180,000 • 1 bed • 2 bath • 1681 ft²
Industrial park for sale in Unit 111 Hartlebury Trading Estate Kidderminster Worcestershire DY10 4JB, DY10 — £3,750,000 • 1 bed • 1 bath
Commercial property for sale in Sandy Lane Industrial Estate, Stourport-On-Severn, Worcestershire, DY13 — £250,000 • 1 bed • 2 bath • 2290 ft²


























