Modern family living in a peaceful Launceston cul-de-sac, ready to occupy.
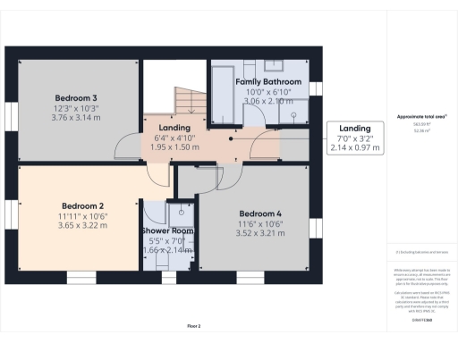
Five bedrooms across three floors, including two en-suites
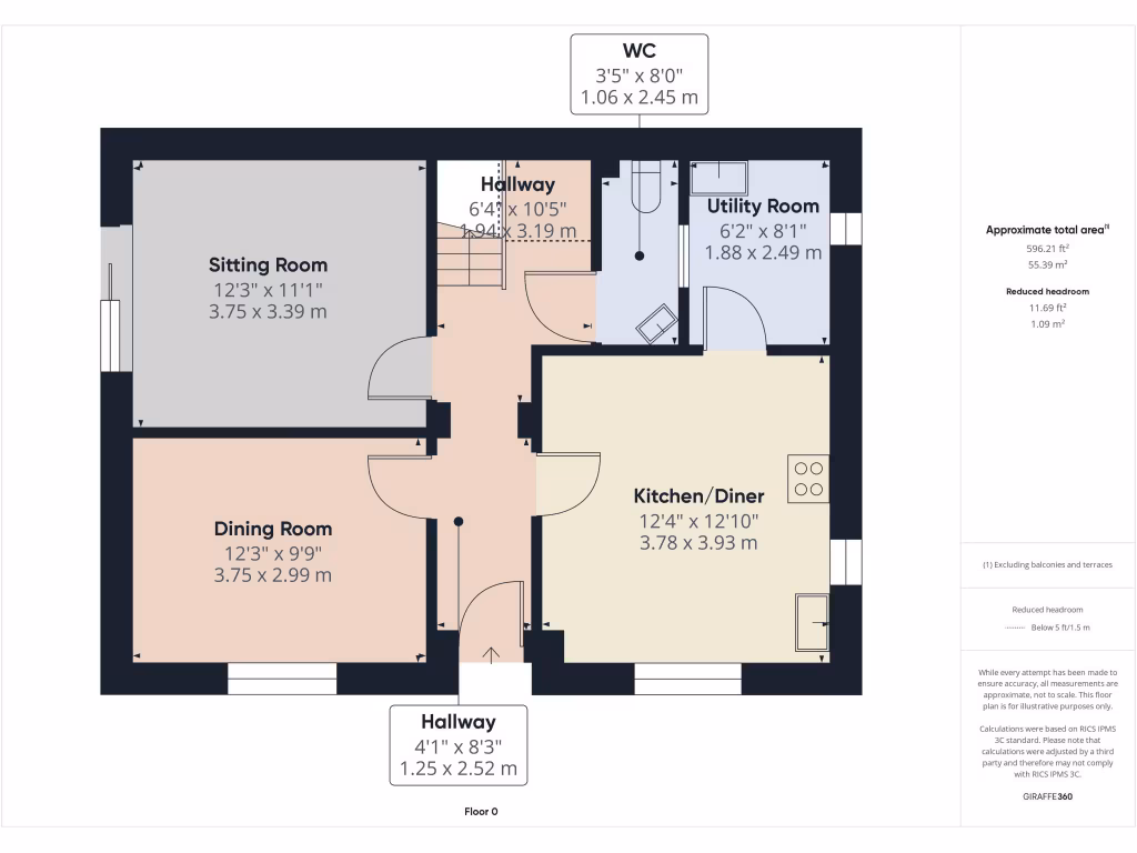
Three versatile reception rooms, suitable for living, dining or home office
Modern kitchen/diner with integrated appliances and separate utility room
Enclosed private rear garden with patio; garden and plot are modest in size
Garage plus an allocated off-road parking space
Built 2003–2006, double glazed, gas central heating, EPC rating C
Offered freehold and chain free for a quicker move
Walking distance to schools, shops and local amenities
This well-presented five-bedroom semi-detached house in Kensey Valley Meadow offers flexible family living across three floors. The layout includes three reception rooms, a modern kitchen/diner with integrated appliances, a separate utility and ground-floor cloakroom — useful for busy household routines. Two bedrooms have en-suite shower rooms and there is a modern family bathroom, supporting larger or multi-generational families.
Externally the property benefits from an enclosed rear garden with patio, a garage and an allocated off-road parking space. Built between 2003–2006, the house has double glazing, gas central heating and an Energy Performance Certificate rating of C, helping keep running costs reasonable. The home is offered freehold and chain free, and sits within walking distance of Launceston amenities, schools and transport links.
Practical points to note: the plot and garden are modest in size for a five-bedroom house, so outdoor space is functional rather than expansive. The property is set in a small town fringe location with very low crime and good broadband and mobile signal, which supports home working. An internal viewing is recommended to judge room proportions and flow for your family’s needs.
5 bedroom house for sale in Kensey Valley Meadow, Launceston, PL15 — £320,000 • 5 bed • 3 bath • 1787 ft²
3 bedroom terraced house for sale in Kensey Valley Meadow, Launceston, PL15 — £227,500 • 3 bed • 2 bath • 1023 ft²
3 bedroom terraced house for sale in Kensey Valley Meadow, Launceston, PL15 — £269,950 • 3 bed • 2 bath • 1260 ft²
3 bedroom semi-detached house for sale in Kensey Valley Meadow, Launceston, PL15 9TS, PL15 — £240,000 • 3 bed • 2 bath • 1033 ft²
4 bedroom terraced house for sale in Kensey Valley Meadow, Launceston, PL15 — £275,000 • 4 bed • 2 bath • 1263 ft²
3 bedroom terraced house for sale in Kensey Valley Meadow, Launceston, Cornwall, PL15 — £240,000 • 3 bed • 2 bath • 383 ft²














































































































