Spacious four-bedroom house with garage and garden near Blackheath station.
End-of-terrace on private Cator Estate cul-de-sac
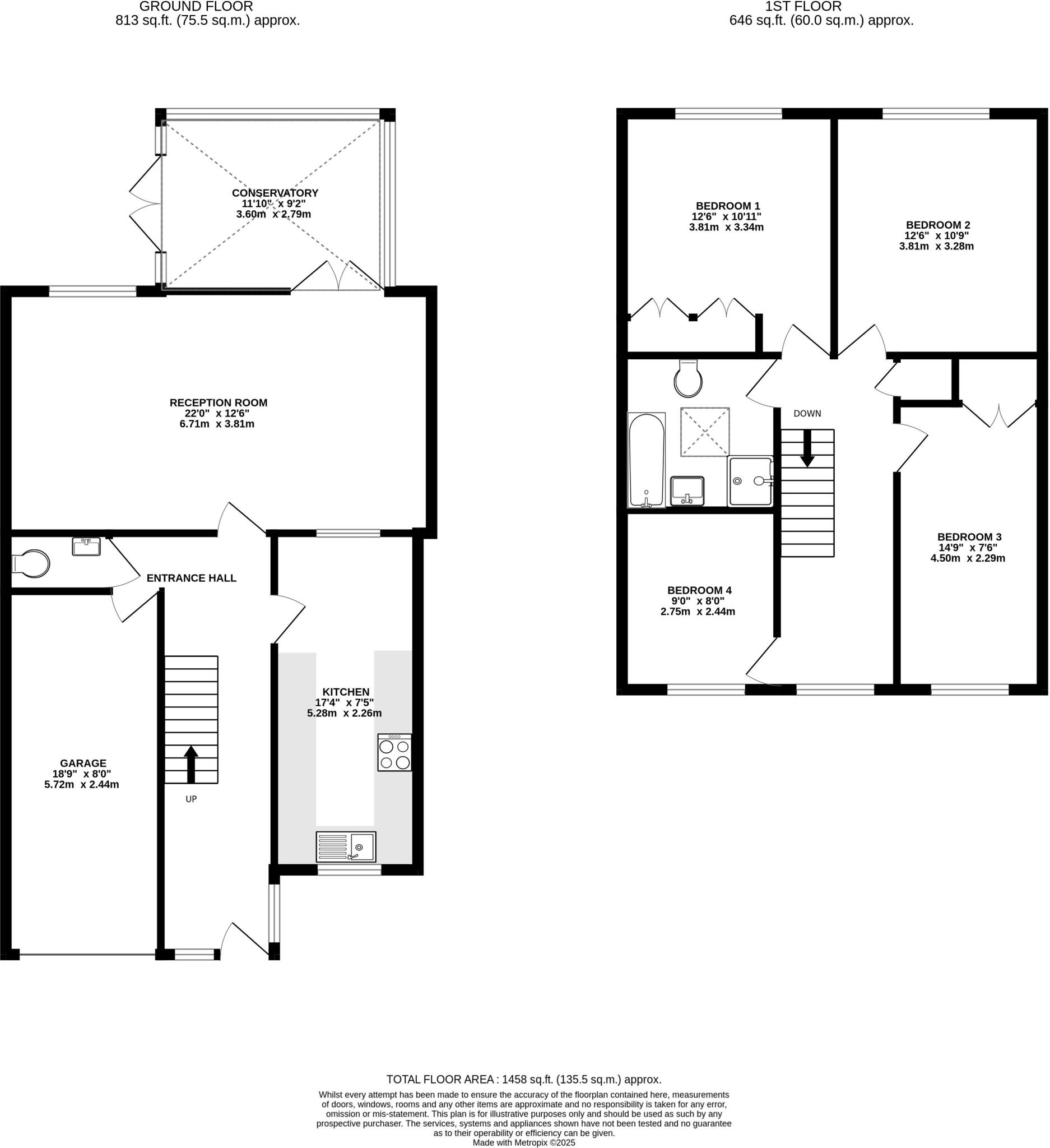
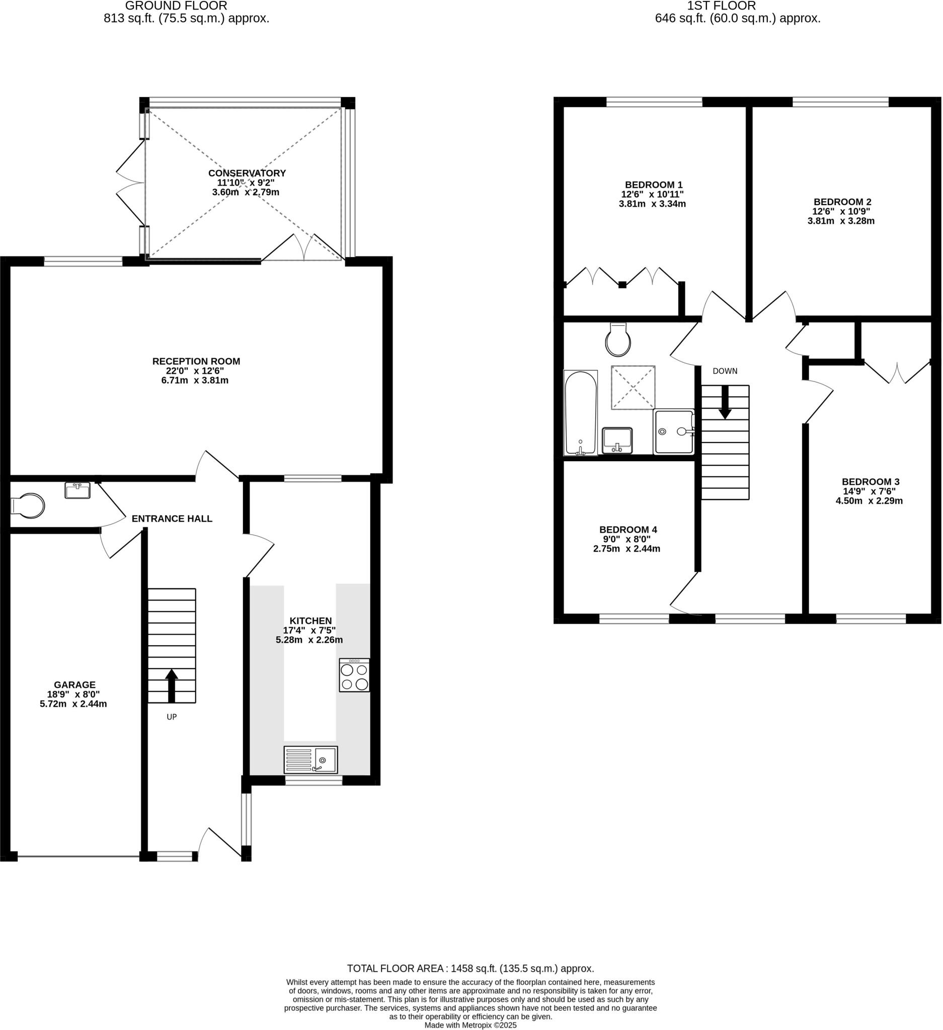
Set quietly at the end of a cul-de-sac on the highly regarded Cator Estate, this 1970s-built end-of-terrace house offers broad family accommodation across 1,458 sq ft. The large reception room opens to a conservatory, there is a substantial integral single garage and off-street parking, and a secluded rear garden provides private outdoor space. Located within walking distance of Blackheath village and the mainline station, the location suits commuters and families alike.
The house is structurally sound with double glazing, a well-insulated roof and mains gas central heating, but it requires comprehensive updating throughout. The layout includes four bedrooms served by a single family bathroom, so some buyers will want to reconfigure or extend subject to permissions. The property is chain free, which should simplify a prompt sale.
Practical considerations: broadband speeds are slow and the property sits on a small plot, so ambitious garden or extension plans will be constrained. EPC rating is D and council tax is in a high band (Band F), both relevant to running costs. The home presents strong potential for refurbishment or a sympathetic redesign to create a modern family layout and increase value.
For buyers seeking a spacious, well-located family house with renovation scope in a very desirable private estate, this offers immediate occupancy as well as upside through updating. Investors should note the single bathroom and refurbishment requirements against potential rental demand in the area.
3 bedroom house for sale in Brooklands Park, London, SE3 — £1,750,000 • 3 bed • 1 bath • 2188 ft²
3 bedroom house for sale in Brooklands Park, London, SE3 — £1,750,000 • 3 bed • 1 bath • 2188 ft²
4 bedroom semi-detached house for sale in Morden Road, London SE3 — £1,450,000 • 4 bed • 2 bath • 1423 ft²
3 bedroom detached house for sale in Manorbrook, Blackheath, London, SE3 — £1,500,000 • 3 bed • 3 bath • 1577 ft²
4 bedroom semi-detached house for sale in Birchmere Row, Pond Road, Blackheath, London, SE3 — £1,500,000 • 4 bed • 3 bath • 1826 ft²
3 bedroom terraced house for sale in Richmount Gardens, LONDON SE3 — £670,000 • 3 bed • 2 bath • 951 ft²






























































































































































