New-build, low-running-cost three-bedroom home two miles from Weymouth harbour and esplanade..
- Band A energy rating with PV panels and 5 kW battery storage
- Air-source heat pump, underfloor heating ground floor, radiators first floor
- Three double bedrooms, ensuite to principal bedroom
- LVT flooring included to ground floor; modern fitted kitchen with appliances
- Porcelain full-width patio and easy-maintenance turfed garden
- Double timber carport providing parking for two cars
- All-electric (no gas); mains broadband not yet connected
- Above-average local crime and area shows pockets of deprivation
This newly built three-bedroom semi-detached Snowdrop 2 house on Curtis Fields offers modern, low-running-cost living with a Band A energy rating. Photovoltaic panels, about 5 kW battery storage and an air-source heat pump combine with ground-floor underfloor heating to deliver strong energy performance and reduced bills. The property includes a fitted kitchen with integrated appliances, LVT to the ground floor and a full-width porcelain tiled patio opening from French doors.
Accommodation is arranged over three storeys with three double bedrooms, an ensuite to the principal bedroom, family bathroom and a versatile study/dressing room. The layout suits families who want defined living space and separate bedrooms, plus outdoor space that’s easy to maintain. A double timber carport provides off-street parking for two cars and there is a Portland stone front wall and turfed rear garden.
Buyers should note material facts: the property is all-electric (no gas), mains broadband was not yet connected at time of listing, and glazing appears to pre-date 2002. The development has an annual site service charge of £295 and the wider area records above-average crime and pockets of deprivation — factors to consider for longer-term resale or rental planning. All homes include a 10-year NHBC warranty.
Overall this is a contemporary, energy-efficient home offering low running costs and modern finishes, suitable for families or buyers prioritising sustainability and a seaside town location approximately two miles from Weymouth harbour and esplanade.
2 bedroom end of terrace house for sale in Plot 652 Curtis Fields, 101 Lanehouse Rocks Road, Weymouth DT4 9HY, DT4 — £292,500 • 2 bed • 1 bath • 625 ft²
2 bedroom end of terrace house for sale in Plot 654 Curtis Fields, 105 Lanehouse Rocks Road, Weymouth DT4 9HY, DT4 — £287,500 • 2 bed • 1 bath • 778 ft²
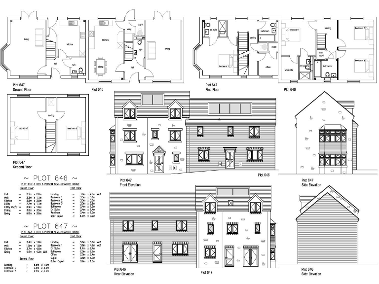
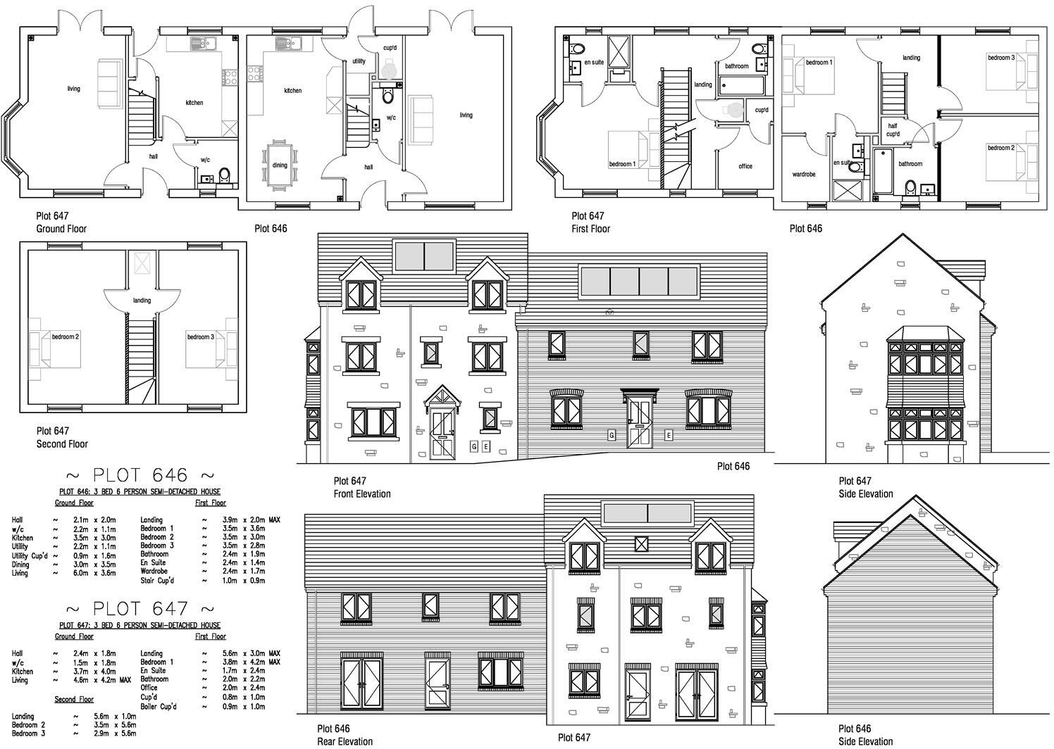
3 bedroom terraced house for sale in Plot 649 Curtis Fields, 97 Lanehouse Rocks Road, Weymouth, DT4 9HY, DT4 — £350,000 • 3 bed • 2 bath • 1744 ft²
2 bedroom semi-detached house for sale in Plot 299 Curtis Fields, 85 Curtis Fields, Weymouth, DT4 0TS, DT4 — £297,500 • 2 bed • 1 bath • 856 ft²
2 bedroom terraced house for sale in Plot 379 Curtis Fields, 9 Bramble Road, Weymouth, DT4 0FT, DT4 — £285,000 • 2 bed • 1 bath • 856 ft²
3 bedroom semi-detached house for sale in Plot 369 Curtis Fields, 29 Bramble Road, Weymouth, DT4 0FT, DT4 — £357,500 • 3 bed • 2 bath • 422 ft²






























































































