Spacious family living near parks and strong local schools.
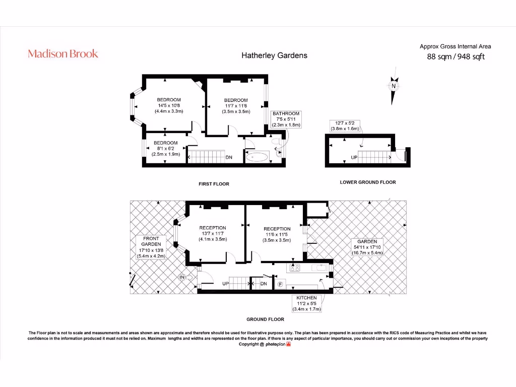
Three bedrooms with good natural light
Two reception rooms and separate fitted kitchen
Private rear garden plus small front garden
Sizeable cellar offering substantial storage
Freehold mid-terrace, approx. 948 sq ft (88 sqm)
Solid brick walls; no known insulation (assumed)
Single family bathroom only
On-street council-permit parking; close to Central Park
A classic Victorian mid-terrace on Hatherley Gardens, this three-bedroom home balances period character with practical family space. High ceilings and bay windows give the front reception a bright, airy feel while a second reception and separate kitchen extend daily living toward the private rear garden.
The layout suits families or buyers seeking a rental opportunity: three well-proportioned bedrooms upstairs, a contemporary three-piece bathroom, and a sizeable cellar for storage. The property is freehold and sits close to Central Park, good local schools and everyday amenities, with fast broadband and excellent mobile signal for modern living.
Buyers should note a few material points: the terrace was built c.1900–1929 with solid brick walls and no known cavity insulation (assumed), and the house has a single family bathroom. The plot and gardens are small to average for an urban terraced home, and the wider area scores as deprived, which may affect longer-term resale expectations.
Overall this is a versatile, characterful home that will suit families wanting space near green amenities or investors targeting the East Ham market. Straightforward energy and insulation improvements could reduce running costs and boost value, while the cellar and two reception rooms offer scope to reconfigure or modernise to taste.
4 bedroom terraced house for sale in Hatherley Gardens, London, E6 — £600,000 • 4 bed • 2 bath • 1244 ft²
3 bedroom terraced house for sale in Victoria Avenue, London, E6 — £625,000 • 3 bed • 2 bath • 1046 ft²
3 bedroom terraced house for sale in Haldane Road, East Ham, London, E6 — £475,000 • 3 bed • 1 bath • 882 ft²
3 bedroom terraced house for sale in Ashford Road, East Ham, London, E6 — £550,000 • 3 bed • 1 bath • 967 ft²
3 bedroom end of terrace house for sale in Brampton Road, East Ham, E6 — £550,000 • 3 bed • 1 bath • 1055 ft²
3 bedroom terraced house for sale in Clements Road, East Ham, London, E6 — £575,000 • 3 bed • 2 bath • 1129 ft²










































