Spacious three-bed semi with double garage and update potential in quiet NR3 cul-de-sac.
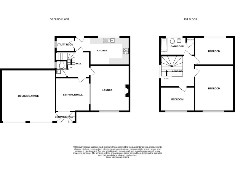
Three bedrooms with separate study/entrance area
Double garage and driveway providing off-road parking
Enclosed rear garden; modest/small plot size
Kitchen and some fittings need modernisation
Built circa 1967–75; typical maintenance likely required
Full fibre broadband and excellent mobile signal
No flood risk; located in low-crime, affluent area
Freehold tenure; council tax Band C (affordable)
Set on a quiet NR3 cul-de-sac, this three-bedroom semi-detached house offers practical family living with off-road parking and a double garage. The layout provides a separate entrance/study, a generous lounge/diner, utility and ground-floor WC — useful for busy households. Full fibre broadband and excellent mobile signal suit modern working and streaming needs.
The property is solidly constructed (circa 1967–75) with double glazing and gas central heating. Bedrooms are well proportioned and the rear garden is enclosed and private, though the plot is modest in size. There is no flooding risk and the area is affluent with low crime and good transport links to Norwich city centre.
Some updating is required: the kitchen and certain fittings reflect late 20th century styling and would benefit from modernisation. Buyers should note the age of the build and typical maintenance that implies. Schools nearby are mixed in performance — one outstanding secondary is local, while several primaries require improvement.
This freehold home will suit first-time buyers or families seeking a move-in-ready base with scope to add value through targeted upgrades. Practical features such as a double garage and driveway parking make it a sensible choice for everyday family life.
3 bedroom semi-detached house for sale in Aylesbury Close, Norwich, NR3 — £270,000 • 3 bed • 1 bath • 1223 ft²
3 bedroom semi-detached house for sale in Half Mile Road, Norwich, Norfolk, NR3 — £260,000 • 3 bed • 1 bath • 1054 ft²
3 bedroom semi-detached house for sale in Earlham Grove, Norwich, NR5 — £265,000 • 3 bed • 1 bath • 952 ft²
3 bedroom semi-detached house for sale in Aylsham Road, Norwich, NR3 — £250,000 • 3 bed • 1 bath • 684 ft²
3 bedroom semi-detached house for sale in Spencer Road, Norwich, NR6 — £230,000 • 3 bed • 1 bath • 905 ft²
3 bedroom semi-detached house for sale in Naseby Way, Norwich, NR7 — £260,000 • 3 bed • 1 bath • 788 ft²














































