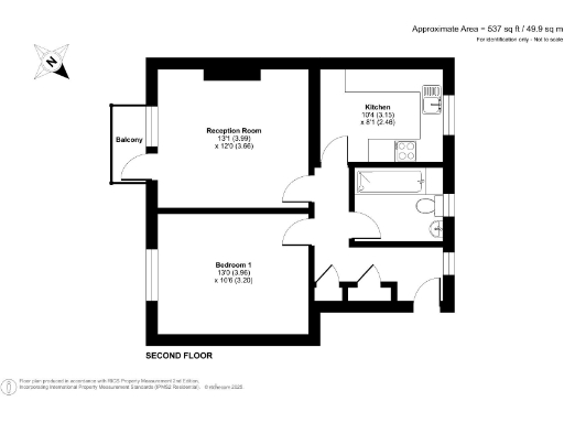
**Standout Features:**
- Modern one-bedroom flat in a purpose-built development
- Private balcony with views
- New boiler recently installed
- Residents' parking available
- A short walk to Sydenham Station
- Close to High Street and Crystal Palace Park
This stylish one-bedroom flat in the sought-after Upper Sydenham area presents an excellent opportunity for first-time buyers or those seeking a cozy urban retreat. Enjoy bright, airy living spaces with contemporary design elements, complemented by beautiful wooden flooring and large windows that enhance the sense of openness. The recently upgraded boiler ensures modern comfort and reliability, allowing you to move in with ease.
Situated just moments from Sydenham Station, commuting is straightforward, and the vibrant local High Street offers a host of amenities. Relax or entertain on your private balcony, and make the most of weekend strolls in the nearby Crystal Palace Park. While the property is leasehold and the average size may not accommodate large families, its accessibility and modern charm provide significant value. Don't miss out on this ideal entry point into a flourishing community in a prime location—opportunities like this don’t last long!
2 bedroom flat for sale in Sydenham Hill, London, SE26 — £300,000 • 2 bed • 1 bath • 753 ft²
1 bedroom flat for sale in Hatcham Street, London, SE26 — £350,000 • 1 bed • 1 bath • 587 ft²
1 bedroom apartment for sale in Haverley Street, London, SE26 — £300,000 • 1 bed • 1 bath • 557 ft²
2 bedroom flat for sale in Sydenham Avenue, Sydenham, London, SE26 — £400,000 • 2 bed • 1 bath • 696 ft²
1 bedroom flat for sale in High Level Drive, SE26, Sydenham, London, SE26 — £250,000 • 1 bed • 1 bath • 515 ft²
1 bedroom flat for sale in Kingswood Estate, West Dulwich, London, SE21 — £270,000 • 1 bed • 1 bath • 527 ft²






























































