**Property Highlights:**
- Share of freehold with 100 years left on the lease
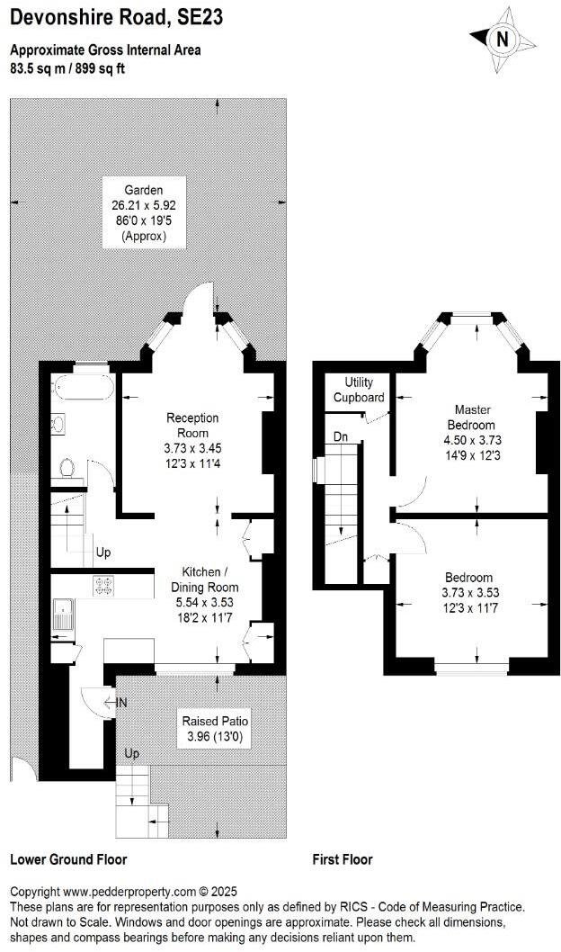
- Two spacious double bedrooms
- Open-plan kitchen/diner
- Generous 86 ft private rear garden
- Off-street parking
- Abundant natural light with high ceilings
- Chain-free sale
- Fantastic transport links to central London
Nestled in a desirable area of SE23, this charming two-bedroom split-level maisonette offers both comfort and potential. Ideal for families or first-time buyers, the home features a bright open-plan kitchen and dining area that flows into a spacious reception room, providing direct access to a stunning 86 ft private garden—perfect for outdoor gatherings or a tranquil retreat. The property boasts a high specification throughout, original wood flooring, and ample natural light, making it feel warm and inviting.
With off-street parking and excellent transport links to London Bridge, Victoria, and many other key destinations from Forest Hill and Honor Oak Park stations, your commute is made effortless. Local amenities including vibrant cafes, restaurants, and the Horniman Museum and Gardens are right on your doorstep, enhancing your lifestyle and community experience.
While the home is in good condition, prospective buyers should be aware that some minor maintenance may be needed for optimal enjoyment. Given its appealing features and competitive price of £650,000, viewings are highly recommended. Don’t miss the opportunity to make this delightful property your new home!



































































