**Standout Features:**
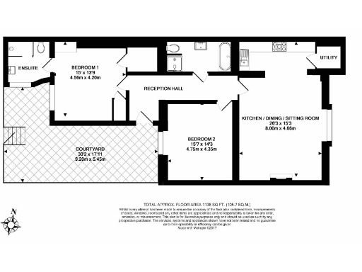
- Spacious 1138 sq ft two-bedroom apartment
- Two modern bathrooms, one ensuite
- Private courtyard garden, ideal for entertaining
- High ceilings and period features like fireplaces
- Located in the desirable Lansdown district
- Excellent mobile signal and fast broadband
- Potential annual gross income of approximately £35,000 for investors
**Concerns:**
- Grade II* listed status may limit modification options
- Service charge of approximately £1200 per year
- High crime rate in the area
Nestled within a stunning Grade II* listed Georgian townhouse, this expansive garden apartment presents a unique opportunity for those seeking both charm and modern living. Boasting two well-proportioned bedrooms, including a luxurious principal suite with an ensuite shower room and walk-in wardrobe, the home features a generous reception area complemented by a fully fitted modern kitchen and a dedicated utility space. The inviting living-dining area is bathed in natural light from a bay window, while the high ceilings and period details like a feature fireplace add a touch of elegance.
Tucked away in a quiet mews in the highly regarded Lansdown district, you will enjoy close proximity to the fashionable Montpellier area and Cheltenham's vibrant town center, offering an array of cafes and amenities. Although the property’s Grade II* status might restrict certain renovations, its overall condition is strong, and the investment potential is significant given its current rental income. The private courtyard provides a perfect escape for outdoor living, setting the stage for a serene and exclusive lifestyle. Don't miss this chance to own a substantial piece of history blended with modern comfort—properties like this in such a sought-after location are rare!
1 bedroom apartment for sale in Montpellier Drive, Cheltenham, GL50 — £195,000 • 1 bed • 1 bath • 509 ft²
2 bedroom flat for sale in Wellington Street, Cheltenham, Gloucestershire, GL50 — £275,000 • 2 bed • 1 bath • 881 ft²
2 bedroom apartment for sale in 7 Berkeley Place, Cheltenham, GL52 — £228,000 • 2 bed • 1 bath • 759 ft²
1 bedroom apartment for sale in Evesham Road, Pittville, GL52 — £170,000 • 1 bed • 1 bath • 526 ft²
2 bedroom flat for sale in London Road, Cheltenham, GL52 — £220,000 • 2 bed • 1 bath • 538 ft²
2 bedroom apartment for sale in Montpellier Spa Road, Cheltenham, Gloucestershire, GL50 — £340,000 • 2 bed • 2 bath • 677 ft²










































