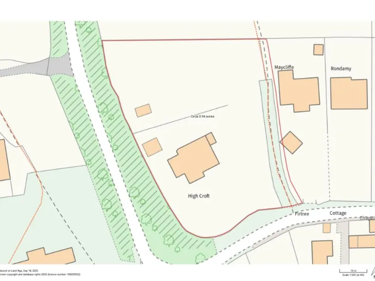
Fully consented 0.94-acre plot for a substantial contemporary family home with countryside views.
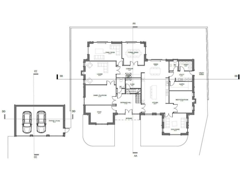
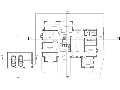
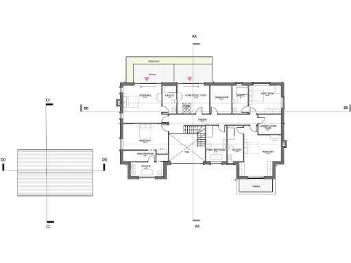
Consent granted for replacement dwelling and detached garage (Ref DMPA/2024/1484)
Site extends to circa 0.94 acres with countryside views to the rear
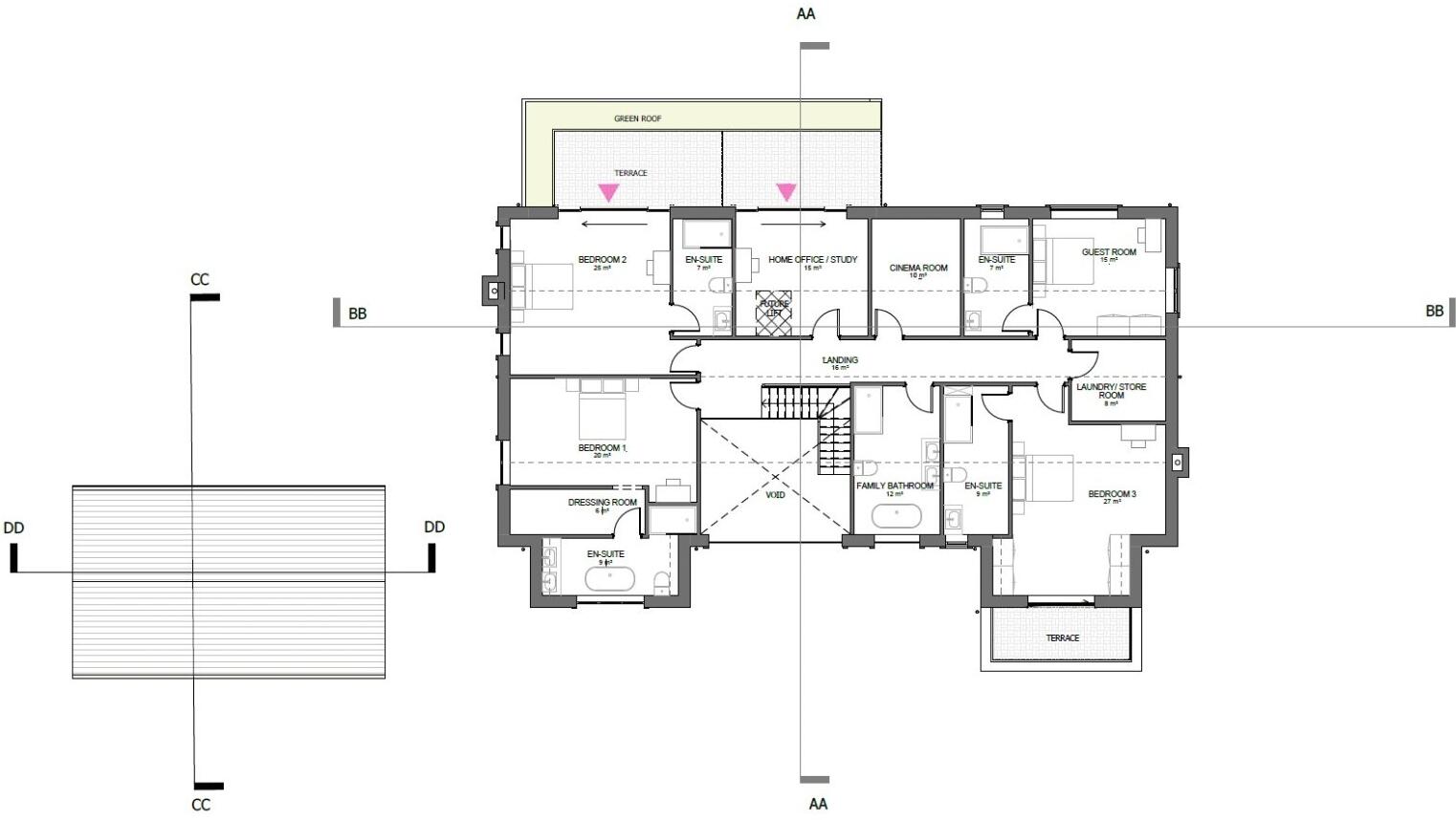
Proposed dwelling circa 5,350 sq.ft (GIA) over two floors
Situated in Smisby village within a Conservation Area, elevated position
Services not tested—buyer responsible for all upgrades and development costs
Part of site unregistered; existing covenants, easements and a public footpath apply
Broadband speeds limited locally; mobile signal reported as excellent
Council Tax likely Band F; unconditional offers preferred
A rare, fully consented development plot in the heart of Smisby, offered freehold with planning (DMPA/2024/1484) for a substantial two-storey replacement dwelling and detached garage. The site extends to circa 0.94 acres and the consented dwelling is proposed at around 5,350 sq ft (GIA), offering scope for large principal rooms, extensive glazing and landscaped grounds backing onto open countryside.
The location balances village charm with accessibility: 1.5 miles to Ashby-de-la-Zouch, quick links to the A42 and major regional centres, excellent outdoor and schooling amenities nearby, and strong mobile signal. The plot sits within a Conservation Area and occupies an elevated position with rural views to the rear, making it attractive to buyers seeking a high-spec family home or developers targeting a one-off bespoke residence.
Important practical notes: services have not been investigated by the vendor and all costs to upgrade connections will be the purchaser’s responsibility. Part of the site is unregistered and the buyer must accept existing covenants, rights of way and wayleaves (a public footpath runs to the east). Broadband speeds are currently limited in the area and the property will fall into Council Tax Band F once built. Unconditional offers are preferred; all planning and technical due diligence is the responsibility of the purchaser.
Land for sale in Derby Road, Risley, Derby, DE72 — £250,000 • 4 bed • 2 bath • 658 ft²
Plot for sale in The Croft, 67 Church Street, DE12 — £225,000 • 4 bed • 1 bath • 1900 ft²
Plot for sale in Burton Road, Midway, Swadlincote, DE11 — £205,000 • 1 bed • 1 bath • 667 ft²
4 bedroom house for sale in Church Lane, Chilcote, Swadlincote, DE12 — £380,000 • 4 bed • 1 bath • 2500 ft²
Plot for sale in Development Plot - Dalbury Lees, Ashbourne, Derbyshire, DE6 — £275,000 • 1 bed • 1 bath • 2713 ft²
5 bedroom house for sale in Church Lane, Chilcote, Swadlincote, DE12 — £450,000 • 5 bed • 1 bath • 3000 ft²






















































