High-spec four-bed detached with huge parking, garden and excellent school catchment..
- Fully refurbished to a high specification throughout
- Four double bedrooms; principal with en-suite
- Open-plan kitchen/diner plus separate lounge and study
- Large gravel driveway parking for multiple cars
- Enclosed rear garden; mature trees provide privacy
- In catchment for sought-after primary and grammar schools
- Built 1976–82; cavity walls have only partial insulation (assumed)
- Council tax band above average
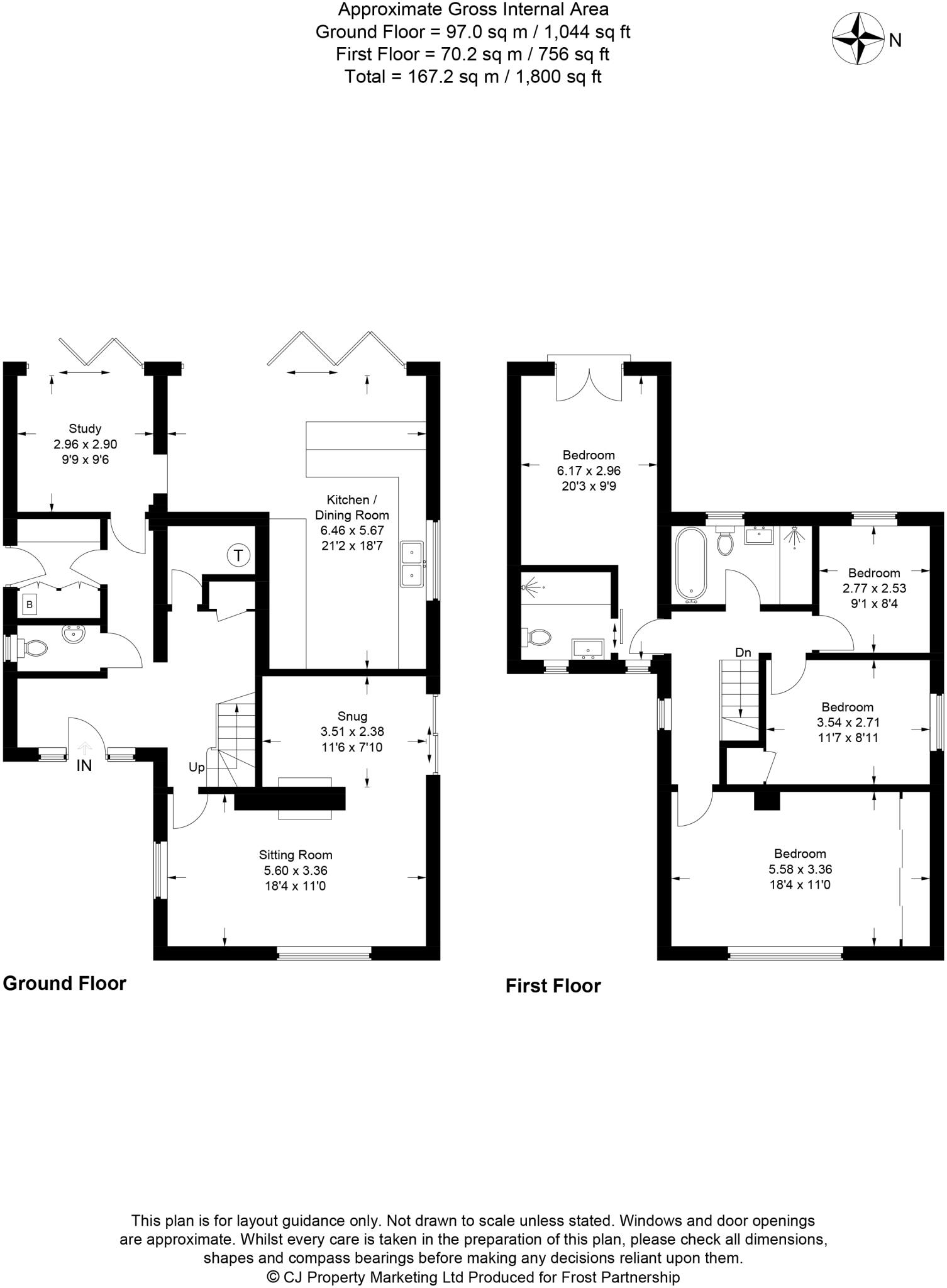
This recently extended and fully refurbished four-bedroom detached house offers spacious family living with a modern, high-spec finish. The home benefits from an open-plan kitchen/diner, separate lounge, snug/study and a utility with downstairs cloakroom, creating flexible space for family life and home working. The principal bedroom includes an en-suite; three further double bedrooms and a family bathroom complete the upstairs.
Externally there's generous off-street parking on a large gravel forecourt (space for multiple cars) and an enclosed rear garden that provides a private outdoor area. The property sits in a very affluent, low-crime neighbourhood and lies within catchment for well-regarded primary and grammar schools, with quick access to junction 3 of the M40 and rail links into London. Offered with no onward chain and freehold tenure.
Practical considerations: the house was constructed in the late 1970s/early 1980s and, although rewired and replumbed during the refurbishment and fitted with new double glazing and modern heating (boiler, radiators and some underfloor heating), the cavity walls show only partial insulation (assumed). Council tax is above average; the front garden is modest despite a large parking forecourt. These are realistic points to factor into running costs and potential further improvement works.
Overall, this property combines a contemporary, near-new feel with proven family-oriented layout and excellent school links. It will suit buyers who want a move-in-refurbished home with scope to personalise, particularly growing families seeking space, parking and strong local amenities.
4 bedroom detached house for sale in Chilterns Close, Flackwell Heath, High Wycombe, HP10 — £795,000 • 4 bed • 1 bath • 1532 ft²
4 bedroom detached house for sale in Conway Close, Loudwater, High Wycombe, Buckinghamshire, HP10 — £499,950 • 4 bed • 2 bath • 1213 ft²
4 bedroom detached house for sale in Seagrave Road, Beaconsfield, Buckinghamshire, HP9 — £1,430,000 • 4 bed • 3 bath • 2691 ft²
4 bedroom detached house for sale in Chapel Lane, High Wycombe, HP12 — £665,000 • 4 bed • 2 bath • 1227 ft²
4 bedroom detached house for sale in Monument Lane, Chalfont St. Peter, Gerrards Cross, Buckinghamshire, SL9 — £1,265,000 • 4 bed • 2 bath • 2243 ft²
4 bedroom detached house for sale in Daws Lea, High Wycombe, Buckinghamshire, HP11 — £795,000 • 4 bed • 2 bath • 1325 ft²


















































































































