### Key Features:
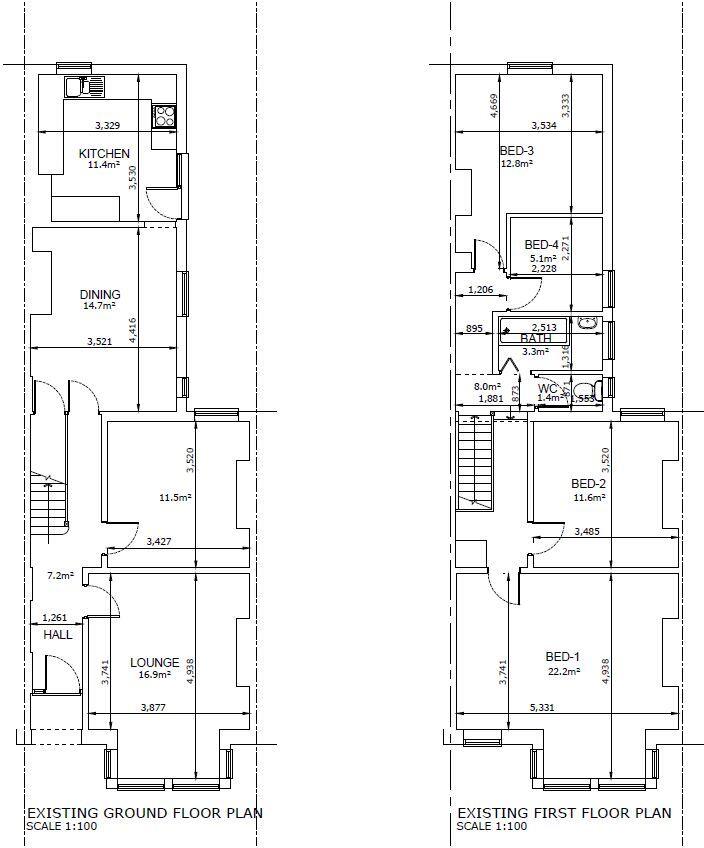
- **Freehold Victorian Terraced House:** Spacious 4-bedroom, 2-bathroom home with potential for modification.
- **HMO Opportunity:** Lawful permission for a 6-bedroom HMO and plans for an L-Shape dormer to expand to 8 bedrooms with ensuite facilities.
- **Recent Upgrades:** New roof and guttering installed in April 2025, enhancing structural integrity.
- **Excellent Location:** Close to High Street, railway stations, bus services, and the seafront.
- **Urban Cultural Mix:** Situated in a vibrant area with good local amenities including schools with 'Good' Ofsted ratings.
### Summary:
This spacious Victorian terraced house, located in postcode SS1 2DW, offers an exceptional opportunity for both investors and families seeking a flexible living arrangement. The freehold property features four bedrooms and three reception rooms, with a sizable kitchen and separate dining area. The house stands out with its lawful planning permission for a six-bedroom HMO, along with approved plans for an L-Shape dormer extension that could transform it into an eight-bedroom property, complete with ensuite options—ideal for maximizing rental income or accommodating a larger family.
While the home requires modernization to suit contemporary tastes, the ample space and the recent upgrades to the roof and guttering provide a sound foundation for future enhancements. The property also includes a rear garden, perfect for outdoor enjoyment.
Don’t miss this rare chance to invest in a versatile property in a high-demand rental area, convenient for commuters with excellent transport links. Competitive bidding is anticipated at the auction on July 30th, 2025, so make sure to explore the potential this property has to offer!
Commercial property for sale in 1 Stanley Road, Southend on Sea, Essex, SS1 2HB, SS1 — £275,000 • 4 bed • 2 bath • 1421 ft²
2 bedroom terraced house for sale in 8 / 8A St. Leonard's Road, Southend-on-Sea, Essex, SS1 2HG, SS1 — £220,000 • 2 bed • 2 bath • 845 ft²
5 bedroom town house for sale in 1 Bowbank Close, Shoeburyness, Essex, SS3 9NU, SS3 — £275,000 • 5 bed • 1 bath • 1012 ft²
2 bedroom terraced house for sale in St. Leonards Road, Southend-on-Sea, Essex, SS1 — £225,000 • 2 bed • 2 bath • 1082 ft²
Commercial property for sale in Building on Wesley Road, r/o 33 & 35 Stanley Road, Southend on Sea, Essex, SS1 2HB, SS1 — £95,000 • 1 bed • 1 bath • 842 ft²
3 bedroom mixed use property for sale in 169 South Avenue, Southend-on-Sea, Southend-on-Sea, SS2 4HX, SS2 — £300,000 • 3 bed • 2 bath • 776 ft²






























































