Character two-bed with allocated parking and quick access to shops.
Heart of Chipping Norton town centre location
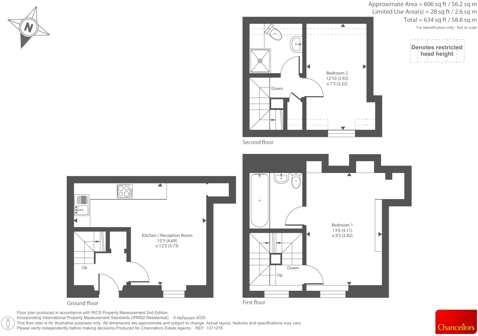
Set in the heart of Chipping Norton, this two-bedroom terraced flat offers town-centre convenience and allocated off-street parking. The open-plan principal reception and two bathrooms make the layout practical for downsizers seeking a low-maintenance base close to shops, cafes and local amenities. With no onward chain, the property is ready for a swift sale.
The building dates from before 1900 and retains a Georgian façade, which brings character but also indicates older construction. The assumed lack of wall insulation and the current EPC rating of E point to potential energy-efficiency improvements — practical projects to reduce running costs and increase comfort. Heating is provided by a mains-gas boiler and radiators.
This is a long leasehold with 104 years remaining (125-year term from 01/01/2004). Buyers should note the sale is the subject of a public notice calling for higher offers, and the property sits in an area with above-average crime statistics. Council tax is described as affordable and local broadband and mobile signals are strong, supporting modern digital needs.
For a buyer seeking a central, characterful home with straightforward access to local services and schools, this property offers solid potential. It will suit someone prepared to make modest energy improvements and comfortable with leasehold ownership and town-centre living.
3 bedroom mews property for sale in White Hart Mews, Chipping Norton, OX7 — £275,000 • 3 bed • 2 bath • 887 ft²
1 bedroom flat for sale in White Hart Mews, Chipping Norton, OX7 — £150,000 • 1 bed • 1 bath • 460 ft²
2 bedroom flat for sale in Chipping Norton, Oxfordshire, OX7 — £230,000 • 2 bed • 2 bath • 768 ft²
2 bedroom flat for sale in Fox Close, Chipping Norton, OX7 — £150,000 • 2 bed • 1 bath • 596 ft²
2 bedroom cottage for sale in White Hart Mews, Chipping Norton, OX7 — £210,000 • 2 bed • 2 bath • 593 ft²
2 bedroom flat for sale in Chipping Norton, Oxfordshire, OX7 — £190,000 • 2 bed • 1 bath • 771 ft²






















































































