Compact, commuter‑friendly home near schools and station.
Two double bedrooms with built-in wardrobe in principal room
West-facing rear garden with patio, lawn and shed
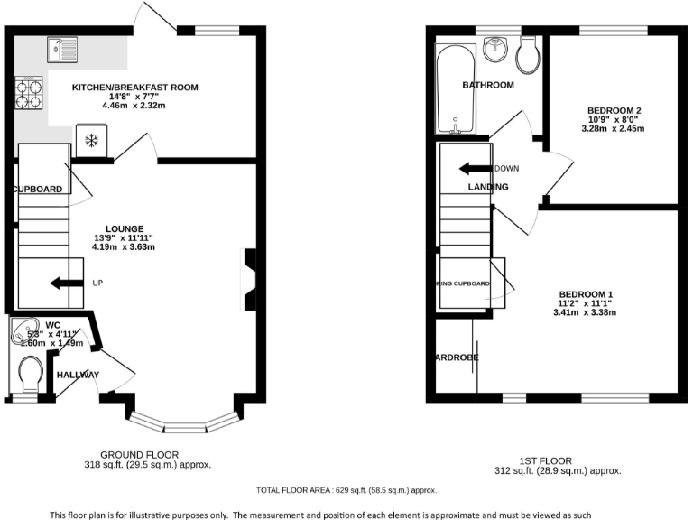
Kitchen/breakfast room opening directly onto the garden
Living room with bay window and feature fireplace
Two allocated off-street parking spaces to the front
Freehold property, mains gas boiler and radiators
Approx 629 sq ft; small plot—limited overall internal space
Double glazing installed before 2002; some updating likely needed
This well-presented two-bedroom end-of-terrace home in Cairns Close offers an efficient layout and practical outdoor space for a small family or couple. The ground floor features a bright kitchen/breakfast room that opens to a west-facing garden, and a cosy living room with a feature fireplace and bay window. Two allocated off-street parking spaces add everyday convenience in this residential pocket of St Albans.
Upstairs provides a spacious principal bedroom with built-in wardrobe, a generously sized second bedroom and a family bathroom with shower-over-bath. The property is freehold, gas‑heated with boiler and radiators, and double-glazed (installed before 2002). A hatch gives loft access for additional storage or future conversion subject to checks.
Location is a strong draw: peaceful eastern St Albans, close to countryside walks, the city centre, and the mainline station. Highly regarded schools nearby make this a sensible choice for families seeking good local education and commuter links. Broadband and mobile signals are strong, and there is no recorded flood risk.
Practical matters to note: the home is compact at around 629 sq ft on a small plot, so space is limited for growing families. Some fixtures and fittings are consistent with the property's 1996–2002 build and may need updating over time. Council tax is moderate and the local area shows average crime and deprivation metrics.
2 bedroom end of terrace house for sale in Aldbury Close, St. Albans, Hertfordshire, AL4 — £499,950 • 2 bed • 1 bath • 786 ft²
2 bedroom end of terrace house for sale in St. Lukes Place, Wellington Road, St. Albans, AL1 — £495,000 • 2 bed • 1 bath • 752 ft²
2 bedroom terraced house for sale in Twyford Road, St. Albans, Hertfordshire, AL4 — £475,000 • 2 bed • 1 bath • 612 ft²
3 bedroom house for sale in Drakes Drive, St. Albans, AL1 — £475,000 • 3 bed • 1 bath • 799 ft²
2 bedroom end of terrace house for sale in Westfield Court, St. Albans, Hertfordshire, AL4 — £450,000 • 2 bed • 1 bath • 672 ft²
2 bedroom terraced house for sale in Bell View, St. Albans, AL4 — £450,000 • 2 bed • 1 bath • 672 ft²






















































































































