Spacious five-bedroom family house with sunny garden, solar panels and easy Millfield access.
Five bedrooms including large master suite with fitted wardrobes
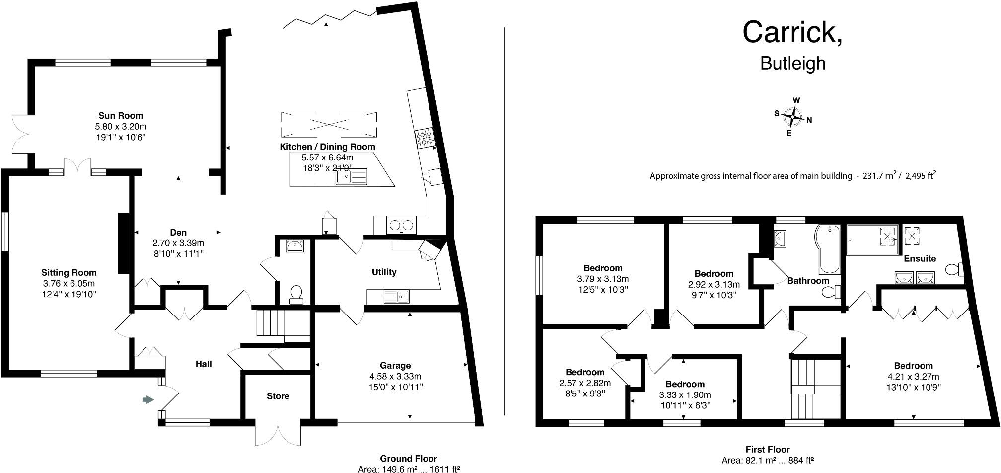
Set on a generous plot in the heart of Butleigh, this five-bedroom detached house combines a 2021 Orme Architects extension with high-efficiency features for modern family living. The open-plan kitchen/dining/living space, vaulted by bi-fold doors and fitted with marble worktops, opens onto a sunny south-west facing terrace and landscaped garden — ideal for entertaining and family life. Solar panels, an EV charging point and underfloor heating contribute to an EPC B (83).
Accommodation includes a large master suite with bespoke wardrobes, four further bedrooms, two bathrooms and multiple reception rooms, giving flexible space for home working, play and quiet zones. The property offers extensive fitted storage, Franklin kitchen units and a well-equipped utility room. Off-street parking for several vehicles and additional stores add practical value.
Notable practical points: the original house dates from the late 20th century with a substantial 2021 extension, and the garage has been partly converted to enlarge the utility space (now best used as storage). There are only two bathrooms for five bedrooms, council tax is Band E (above average) and cavity walls are recorded “as built” with no confirmed added insulation — further insulation work may be desirable. Broadband speeds are average in the village.
This chain-free home sits in a popular, community-minded village with an excellent primary school within walking distance and Millfield less than three miles away. It will suit families seeking spacious, contemporary accommodation in a quiet rural setting, while buyers should note minor retrofit and layout considerations if requiring more bathrooms or a full garage.
5 bedroom detached house for sale in West Park, Butleigh, Glastonbury, Somerset, BA6 — £725,000 • 5 bed • 3 bath • 2277 ft²
5 bedroom detached house for sale in Barton Road, Butleigh, BA6 — £875,000 • 5 bed • 3 bath • 3000 ft²
5 bedroom detached house for sale in Kingweston Road, Butleigh, Glastonbury, BA6 — £950,000 • 5 bed • 4 bath • 2607 ft²
5 bedroom detached house for sale in Barton Road, Butleigh, Somerset, BA6 — £1,100,000 • 5 bed • 4 bath • 3320 ft²
4 bedroom detached house for sale in West Park, Butleigh, BA6 — £725,000 • 4 bed • 3 bath • 2067 ft²
5 bedroom detached house for sale in Grenville Court, Butleigh, BA6 — £895,000 • 5 bed • 4 bath • 2158 ft²






































































































