**Standout Features:**
- Scenic rural location with a 350m long driveway
- 4.6 acres of land, including a stock-fenced paddock
- New cedar-clad triple garage
- Contemporary high-spec extension with sliding glass doors
- Characterful design dating back to the 1800s
- Magnificent panoramic views
- Newly renovated with modern amenities
**Concise Property Summary:**
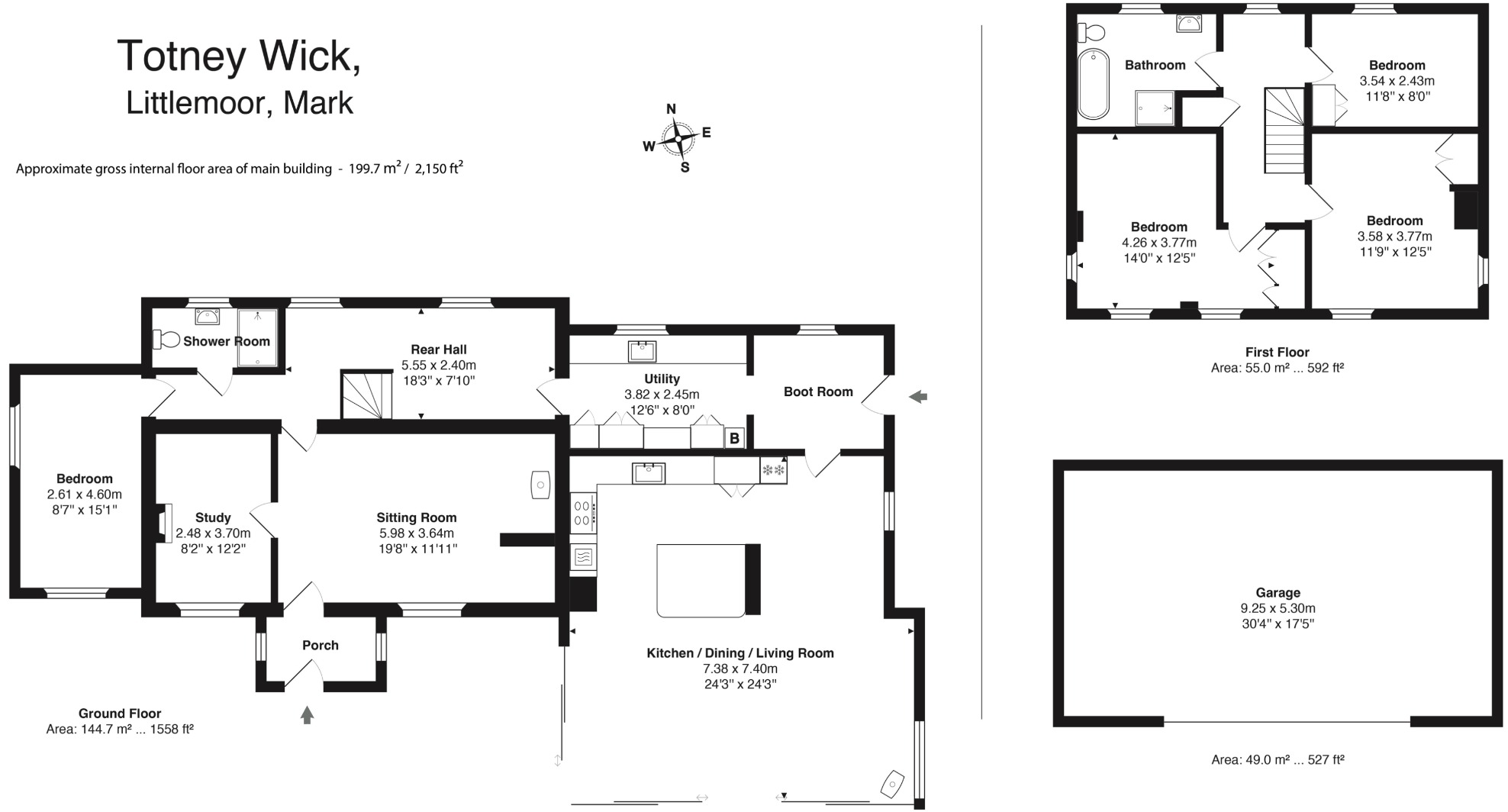
Nestled within a stunning countryside setting, this 4-bedroom detached home in Mark offers a unique blend of historic charm and modern luxury. Set on approximately 4.6 acres with a picturesque long driveway, this property provides a serene escape from city life. The house beautifully marries character features from the 1800s with a contemporary extension showcasing seamless glass doors that open to breathtaking views of the Polden Hills.
Inside, the impressive 24ft x 24ft kitchen/dining/living room is ideal for entertaining and family gatherings, while the traditional snug and guest bedroom offer cozy retreats. Newly renovated throughout with underfloor heating, modern oil-fired heating, and a state-of-the-art kitchen, it's ready for you to move in and start enjoying.
While the expansive garden and paddock lend themselves well to outdoor activities or livestock, potential buyers should note the need for careful maintenance of the property as it features traditional stone construction. Surrounded by tranquil countryside yet conveniently located near charming village amenities, this home presents an attractive opportunity for families and rural lifestyle seekers alike. Don’t miss your chance to own this exceptional property that combines comfort, security, and future potential—schedule a viewing today!
5 bedroom detached house for sale in Blackford Road, Mark, TA9 — £1,250,000 • 5 bed • 3 bath • 5097 ft²
5 bedroom detached house for sale in Mill Lane, Wedmore, BS28 — £1,250,000 • 5 bed • 4 bath • 3229 ft²
4 bedroom detached house for sale in Church Lane, Bicknoller, Taunton, TA4 — £850,000 • 4 bed • 2 bath • 2580 ft²
4 bedroom detached house for sale in Lovington, near Castle Cary, BA7 — £1,100,000 • 4 bed • 2 bath • 2100 ft²
4 bedroom detached house for sale in Goathurst, Bridgwater, TA5 — £750,000 • 4 bed • 2 bath • 2335 ft²
4 bedroom detached house for sale in Kewstoke Road, Kewstoke, Weston-super-Mare, BS22 — £700,000 • 4 bed • 3 bath • 2250 ft²


























































































































