Bright family living near top schools and Lordship Lane amenities.
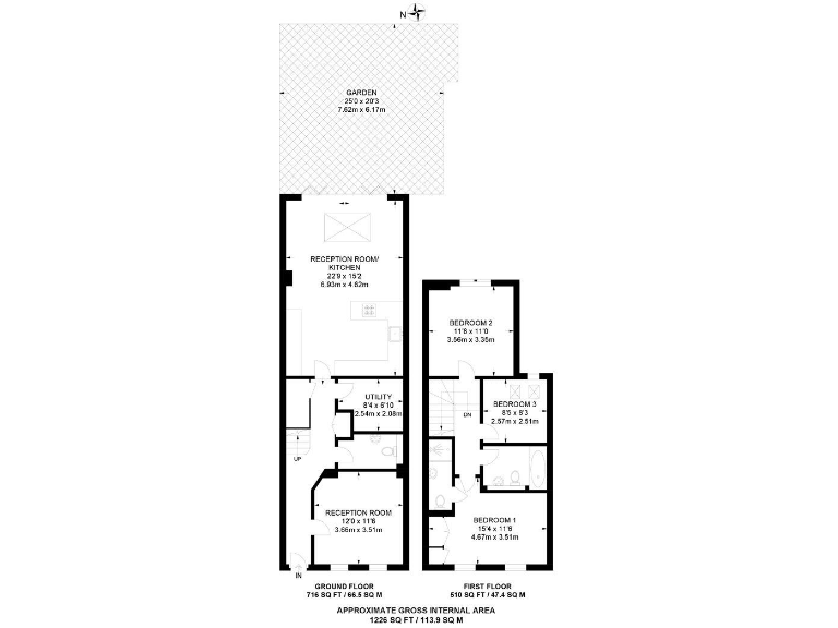
Extended open-plan kitchen/reception with direct access to private garden
A bright, extended Victorian mid-terrace in the heart of East Dulwich, this three-bedroom home balances period character with contemporary living. The ground-floor extension creates a generous open-plan kitchen/reception that flows directly to a private garden, ideal for weekend entertaining and family life. A separate front reception room provides flexible living — a formal lounge or home office — while a utility room with WC adds practical convenience.
Upstairs are three comfortable bedrooms and a stylish family bathroom; the principal bedroom benefits from good built-in storage. The property sits moments from Lordship Lane’s independent shops, cafés and restaurants, with excellent schools nearby and quick rail links at East Dulwich and Peckham Rye for commutes into central London.
Practical details are straightforward: freehold tenure, EPC B and a moderate council tax band. There is medium risk of surface flooding in the area, variable in-home mobile signal and average broadband speeds—factors to consider when planning long-term comfort or remote working arrangements. Overall this is a well-located family home that offers immediate move-in comfort and scope to personalise over time.
3 bedroom terraced house for sale in Crystal Palace Road, East Dulwich, SE22 — £1,200,000 • 3 bed • 1 bath • 1204 ft²
3 bedroom house for sale in Pellatt Road, East Dulwich, London, SE22 — £850,000 • 3 bed • 1 bath • 935 ft²
3 bedroom terraced house for sale in Archdale Road, East Dulwich, London, SE22 — £1,100,000 • 3 bed • 1 bath • 1085 ft²
4 bedroom terraced house for sale in Darrell Road, East Dulwich, London, SE22 — £1,275,000 • 4 bed • 3 bath • 1539 ft²
3 bedroom terraced house for sale in Lordship Lane, London, SE22 — £1,050,000 • 3 bed • 1 bath • 1250 ft²
3 bedroom terraced house for sale in Upland Road, East Dulwich, London, SE22 — £975,000 • 3 bed • 1 bath • 1294 ft²






































































