Ideal for families near top schools and fast rail into London.
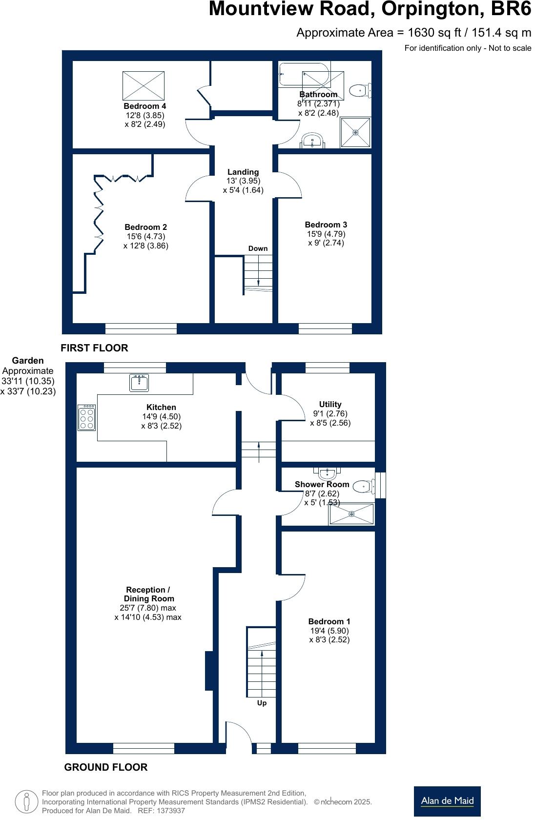
Four double bedrooms over two floors, over 1,600 sq ft
A substantial four-double-bedroom semi-detached home arranged over two floors, offered chain-free and sold via auction. The layout includes a very large reception room, kitchen/breakfast room, separate utility, and a ground-floor double bedroom with an adjacent shower room — useful for accessible or multi-generational living. The plot provides a wide block-paved driveway for three cars and a private rear garden with patio and lawn.
The location is a major selling point: under a quarter mile to Perry Hall Primary (Outstanding) and within 1–1.5 miles of two highly regarded grammar schools. Orpington town centre and rail services (into London from around 17 minutes) are within easy walking distance, and local parks, leisure facilities and retail parks are close by.
The property benefits from mains gas central heating, double glazing (installed before 2002) and an overall generous footprint of about 1,600–1,630 sq ft with good room proportions and natural light. The accommodation will suit a family seeking space and proximity to schools, or buyers aiming to modestly modernise to increase value.
Important sale details and drawbacks: the house is being sold at auction with an undisclosed reserve and starting bid. Buyers must complete within the auction timescale, pay a non-refundable reservation fee (4.5% of the purchase price, subject to a minimum), and complete their own due diligence — the Buyer Information Pack may not disclose every issue. Practical considerations include council tax at a higher band, above-average local crime stats, and evidence the property would benefit from some updating (modernisation likely needed in parts).
4 bedroom detached house for sale in Penhale Close, Orpington, BR6 — £635,000 • 4 bed • 2 bath • 1217 ft²
3 bedroom semi-detached house for sale in Repton Road, Orpington, BR6 — £400,000 • 3 bed • 1 bath • 778 ft²
3 bedroom semi-detached bungalow for sale in Gillmans Road, Orpington, BR5 — £450,000 • 3 bed • 2 bath • 1047 ft²
3 bedroom semi-detached house for sale in Maxwell Gardens, Orpington, BR6 — £375,000 • 3 bed • 1 bath • 1074 ft²
5 bedroom detached house for sale in Fyfield Close, Bromley, BR2 — £990,000 • 5 bed • 2 bath • 1621 ft²
4 bedroom semi-detached house for sale in Gillmans Road, Orpington, Kent, BR5 4LB, BR5 — £585,000 • 4 bed • 1 bath • 1170 ft²














































































